Продажби директно от инвеститора 0% комисиона за купувача!
Най-дългоочакваният проект на инвеститора Олимпия Парк !
Жилищен комплекс Олимпия Парк е разположен в непосредствена близост до парк Лаута , в един от най-предпочитаните райони на ж.к. Тракия локация, съчетаваща спокойствие, свеж въздух и отлична комуникативност.
На мястото на бившия аквапарк Акваленд се изграждат 6 модерни десететажни сгради с просторни двустайни и тристайни апартаменти, проектирани с мисъл за комфорт и функционалност.
Всяка секция разполага с два високоскоростни асансьора, луксозно завършени общи части и контролиран достъп. За удобството на живущите са предвидени:
✔ Детски площадки
✔ Плувен басейн
✔ Търговски площи
✔ 100% обезпечено паркиране подземни и наземни паркоместа
✔ Покупка директно от инвеститор без комисиона от купувач
💳 Гъвкава схема на плащане:
✅ 20% при подписване на предварителен договор
✅ 80% при Акт 16
➡️ Комплексът е с издаден Акт 14, което гарантира напреднал етап на строителство и сигурност на инвестицията.
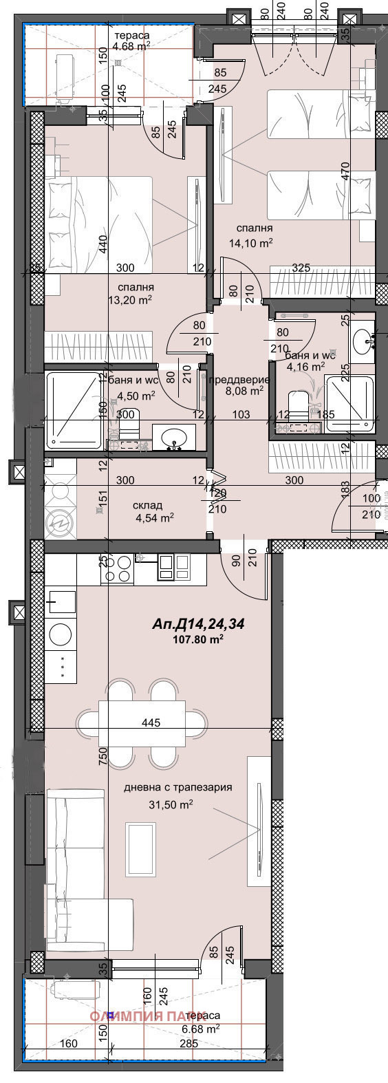
Предложеният апартамент Д-14 се намира във вход Д , на 4-ти етаж, и разполага със:
✔ Просторна дневна с тераса (югозападно изложение)
✔ Две спални
✔ Втора тераса (североизточно изложение)
✔ Две бани с тоалетни
✔ Складово помещение
Всички свободни апартаменти можете да разгледате на:
🌐 www.olympia.bg
📞 За повече информация и огледи:
0887 008 030 / 0886 009 030







