Продажба директно от инвеститора 0% комисиона за купувача!
Комплекс Олимпия Хоум се намира на бул. Цариградско шосе 94 и ще се състои от две секции с двустайни и тристайни апартаменти. Разпределенията са функционални, с изложение изток.
Локацията е изключително удобна в близост до градски транспорт, училища и хипермаркет Кауфланд.
По периферията на комплекса са предвидени търговски обекти.
Паркирането е 100% осигурено чрез подземни и надземни паркоместа и гаражи.
💳 Схема на плащане:
✅ 20% при предварителен договор
✅ 80% при Акт 16
Комплексът е с Акт 14.
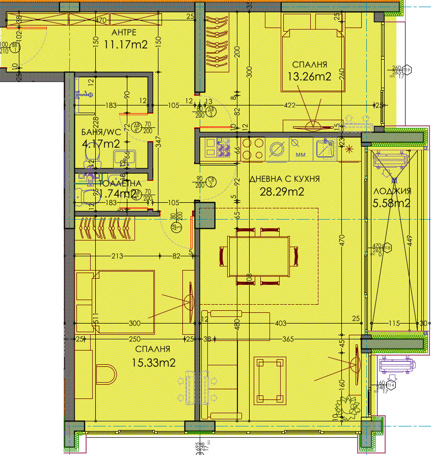
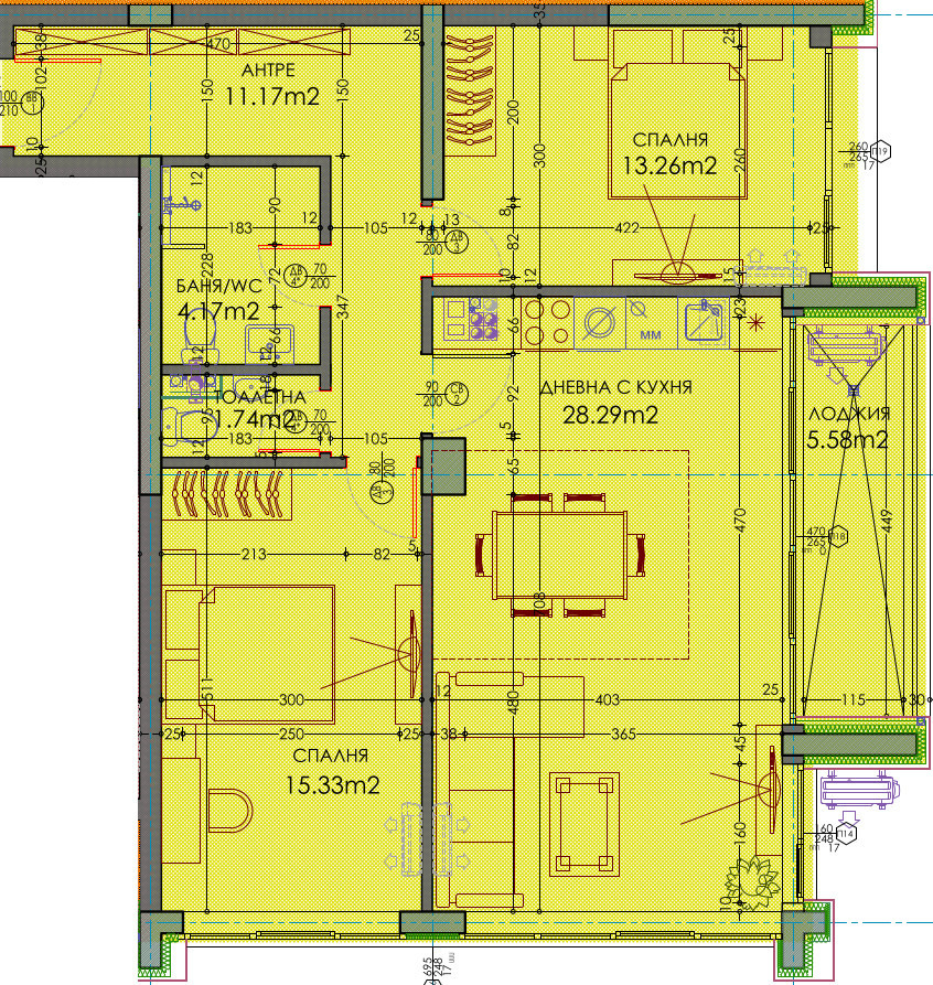
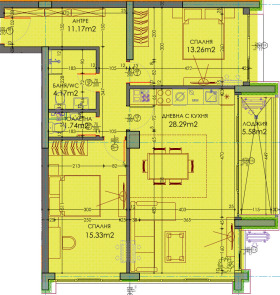
Предлагаме апартамент в Секция 2, ет. 5, ап. 24
Жилището разполага с просторна дневна с трапезария, две спални, складово помещение, баня с тоалетна и лоджия.
Всички свободни апартаменти може да разгледате на:
🌐 www.olympia.bg
За повече информация:
📞 0887 008 030 / 0886 009 030







