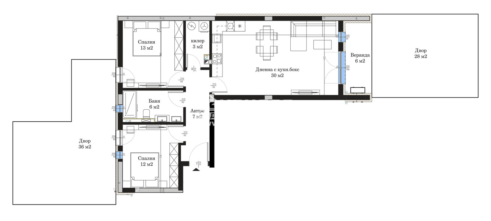
Оферта 64177: ЕКСКЛУЗИВНА НОВА СГРАДА, САМО ОТ КОНДОР ! Представяме ви нискоетажен модерен комплекс в индустриален стил в тих и спокоен район заобиколен от зеленина. Проектът предвижда големи и светли помещения с правилни форми, комфортни за обитаване и обзавеждане. Жилището, което ви предлагаме се състои от ПРОСТОРНА дневна с кухненски бокс и трапезария 30 кв.м С ФРЕНСКИ ПРОЗОРЦИ, две спални, коридор, голяма баня с тоалетна- 6 кв.м, широко перално помещение- 3 кв.м., тераса към дневната, ОЗЕЛЕНЕН ДВОР към дневната- 28 кв.м и втори ДВОР към спалните- 36 кв.м. Комплексът е от затворен тип с бариери, но БЕЗ ТАКСИ за поддръжка, с видеонаблюдение. Високо качество на изпълнение на обекта: външна топлоизолация 12см, шумоизолация на външните стени, шумо и топлоизолация на междуетажните плочи, многокамерна ПВЦ дограма с двоен стъклопакет, асансьор с топла връзка до подземието, станции за електромобили, кабелни трасета- SMART House и 2200 кв.м ОЗЕЛЕНЕН ДВОР! Избор на надземни и подземни гаражи и паркоместа! Гъвкъви схеми на плащане спрямо клиента, съдействие от банки партньори на агенцията за кредит!
ВИЖТЕ ОЩЕ ИЗГОДНИ ОФЕРТИ НА https://www.kondorimoti.com/ С ЕЖЕДНЕВНА АКТУАЛИЗАЦИЯ!







