ДИРЕКТНО ОТ ИНВЕСТИТОР! ПАРТЕРЕН МЕЗОНЕТ !!! 'Ви Ем Инвест' ви представя тристаен апартамент в сграда - 'ТРИАДИЦА'! Намира се в кв. Малинова долина, ул. Тодор Недков, в близост до Ринг мол, Икеа и Околовръстен път. Сградата е с богато озеленено пространство, в район само с новопостроени, нискоетажни жилищни сгради. Работим по най-високите стандарти на строителството, което стриктно изпълняваме само с качествени материали. Фасадите ще бъдат облицовани с каменна вата, окачена вентилируема фасада и минерална мазилка. Дограмата ще бъде висок клас 7-камерна с троен стъклопакет на марката SCHUCO . Апартаментите ще бъдат предадени на собствениците на шпакловка и замазка, с монтирани входни врати SOLID-55 .
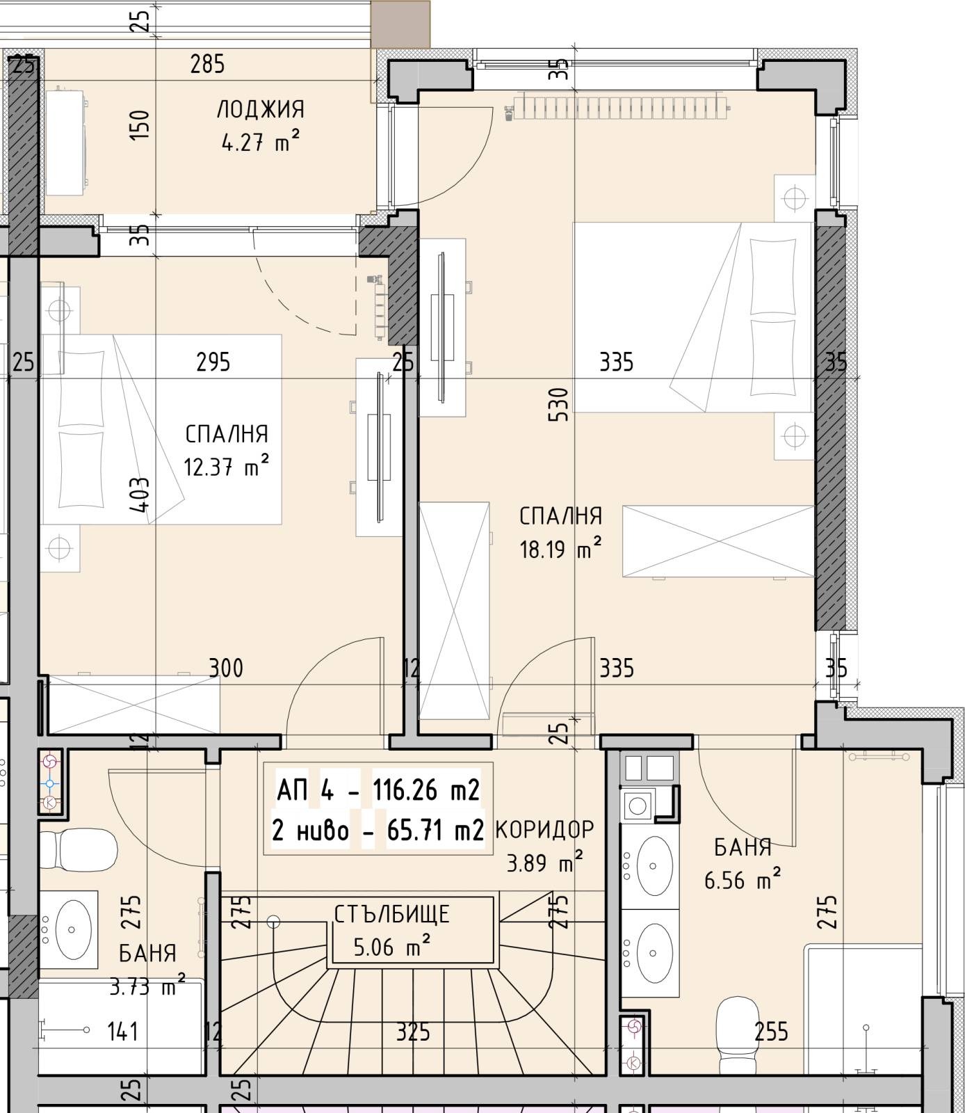
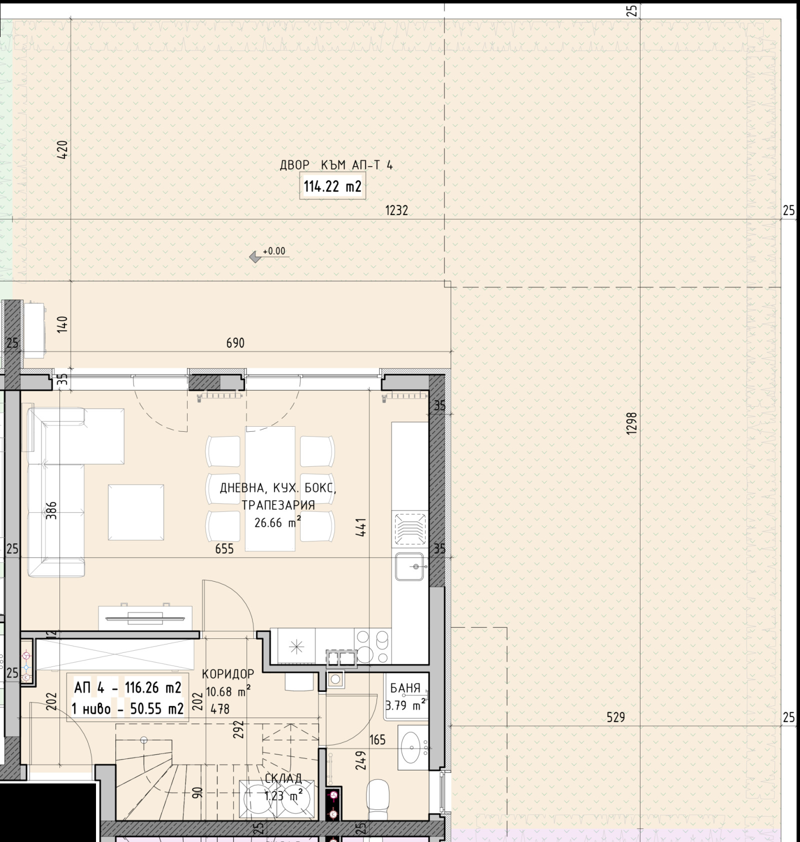
Апартаментът /Ап.4/ е с площ от 133,74 кв.м. и е разположен на партерен и втори етаж.
Разпределение ниво 1: коридор /10,68 кв.м./, дневна с трапезария и кухненски бокс /26,66 кв.м./, баня с тоалетна /3,79 кв.м./складово помещение /1,23 кв.м./ и прилежащ двор /114,22 кв.м./.
Разпределение ниво 2: коридор /4,31 кв.м./ спалня /17,76 кв.м./, втора спалня /12,01 кв.м./, баня с тоалетна /7,09 кв.м./, втора баня с тоалетна /3,89 кв.м./, стълбище /5,06 кв.м./ и балкон тип лоджия /4,28 кв.м./.
Има възможност за закупуване на паркоместа /от 19000 евро/, както и гаражи /от 24000 евро/. Сграда ТРИАДИЦА е етап изграждане на втори етаж. Акт 16 - 06.2026г.
Компанията ни може да ви съдейства за кредитно посредничество, ако сте предвидили плащания чрез ипотечен и/или потребителски кредит.
Като наши клиенти имате възможността да се възползвате от безплатно кредитно консултиране. Ще получите най-добрите оферти, съобразени с вашия личен профил и предпочитания, при преференциални условия.
Научете повече на: www.vminvest.bg







