ОПИСАНИЕ Адрес има удоволствието да предлага за продажба апартаменти в уникален за града ни проект. Разположен в северна част на град Стара Загора , Район Аязмо, съставляващ част от нови високо и нискоетажни жилищни сгради в затворен комплекс, проекта ще предостави не само обитаема площ, но и цялостна концепция за спокойна и удовлетворяваща среда. На разположение са три и четири стайни апартаменти в сграда с осем жилищни етажа
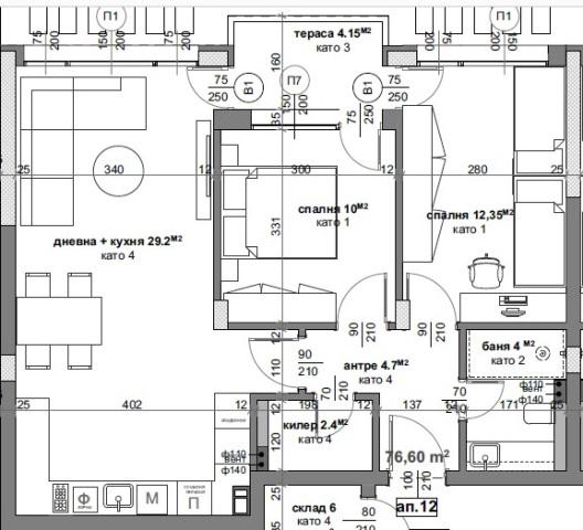
Предлагаме ТРИСТАЕН апартамент с площ от 85 кв. м, разположен на втори етаж. С изцяло южно изложение. Състои се от антре, всекидневна с кухненски бокс, две самостоятелни спални, баня с тоалетна, отделна тоалетна и балкон.
СГРАДА: Монолитно строителство по най високи технологични стандарти, луксозни общи части в смисъла на тези думи, троен стъклопакет и изолация за гарантирана енергийна ефективност, леснодостъпни гаражи и най-вече изградено и поддържано околоблоково пространство с пълно озеленяване и места за отдих. МЕСТОПОЛОЖЕНИЕ: Район Аязмо е силно предпочитан от старозагорци поради красивите панорами над града, лиспата на смог и трафик в близост и спокойствието вечерно време!
ПРЕДИМСТВА: Ново строителство по най-високи технологии, поддържан ландшафт, парково и архитектурно осветление, разсрочено плащане!







