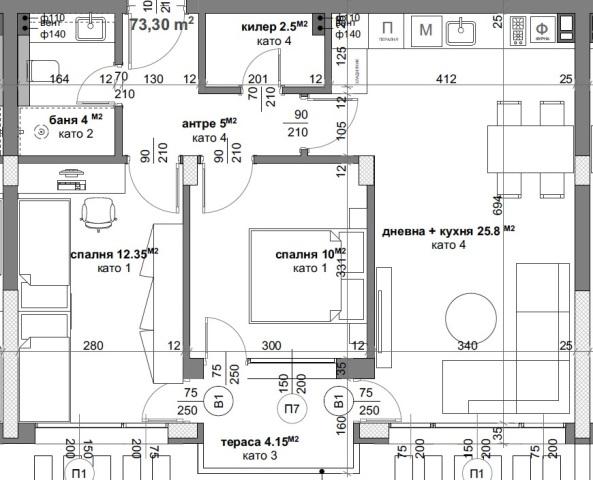
Предлагаме ТРИСТАЕН апартамент с площ от 85 кв. м, разположен на втори етаж. С изцяло южно изложение. Състои се от антре, всекидневна с кухненски бокс, две самостоятелни спални, баня с тоалетна, отделна тоалетна и балкон.
СГРАДА: Монолитно строителство по най високи технологични стандарти, луксозни общи части в смисъла на тези думи, троен стъклопакет и изолация за гарантирана енергийна ефективност, леснодостъпни гаражи и най-вече изградено и поддържано околоблоково пространство с пълно озеленяване и места за отдих. МЕСТОПОЛОЖЕНИЕ: Район Аязмо е силно предпочитан от старозагорци поради красивите панорами над града, лиспата на смог и трафик в близост и спокойствието вечерно време!
ПРЕДИМСТВА: Ново строителство по най-високи технологии, поддържан ландшафт, парково и архитектурно осветление, разсрочено плащане!
Виж всички обяви в address_sz.bazar.bg или тук
        
       
         
         
         
         
             
             
             
            






