За повече информация обадете ни се на тел: 0882 817 487 или 02 425 68 49 и цитирайте референтния номер на имота: Sfa 89327.
Отговорен брокер: Кирил Календерски
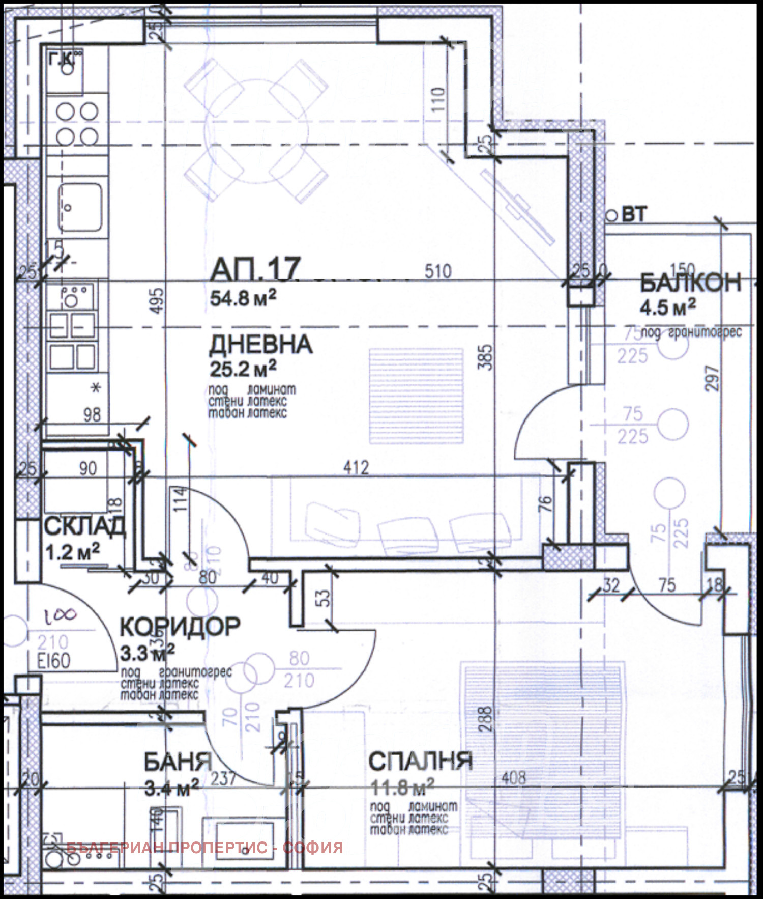
Предлагаме за продажба модерен двустаен апартамент с източно изложение, разположен на пети етаж в бутикова нова сграда в предпочитания столичен квартал Малинова долина, в непосредствена близост до Арката на Националната спортна академия (НСА).
Локацията е изключително комуникативна и удобна. Осигурява бърз достъп до Студентски град, бул. Климент Охридски , Симеоновско шосе и Околовръстния път, което прави имота отличен избор както за собствен дом, така и за инвестиция с висока наемна привлекателност. Допълнително удобство е наличието на голям хранителен магазин в сградата срещу имота, който улеснява ежедневието.
Сградата е бутикова, с общо 22 апартамента, което гарантира спокойна жилищна среда, повече лично пространство и по-висок стандарт на обитаване. На разположение са подземни гаражи и надземни паркоместа, а общите части са изпълнени с висококачествени материали, декоративна мазилка и прецизно внимание към детайла. Строителството е на финален етап, като Акт 16 се очаква в следващите месеци.
Апартаментът се намира на пети етаж от общо шест и благодарение на източното си изложение предлага приятна сутрешна светлина и усещане за свежест и простор още в началото на деня. Разпределението е функционално и добре балансирано, включващо входно антре, светла дневна с кухненски бокс, комфортна спалня, балкон, баня с тоалетна и отделно мокро помещение.
Оглед на имота
Можем да организираме оглед на имота спрямо нашия график и възможностите за достъп до него. Заявете вашето желание за оглед, като се свържете с отговорния за офертата брокер по имейл или телефон.
Резервация на имота
Имотът може да бъде резервиран и свален от продажба със заплащане на депозит, след което се прекратява провеждането на огледи с други купувачи и започва подготовка на документите за сключване на предварителен и окончателен договор. Свържете се с отговорния брокер за подробна информация относно процедурата на покупка и начините за плащане.
Жилищен кредит
Ние си партнираме с водещите български банки и можем да ви свържем с техните консултанти за информация и кандидатстване за кредит.
...



