За повече информация обадете ни се на тел: 0882 817 487 или 02 425 68 49 и цитирайте референтния номер на имота: Sfa 89324.
Отговорен брокер: Кирил Календерски
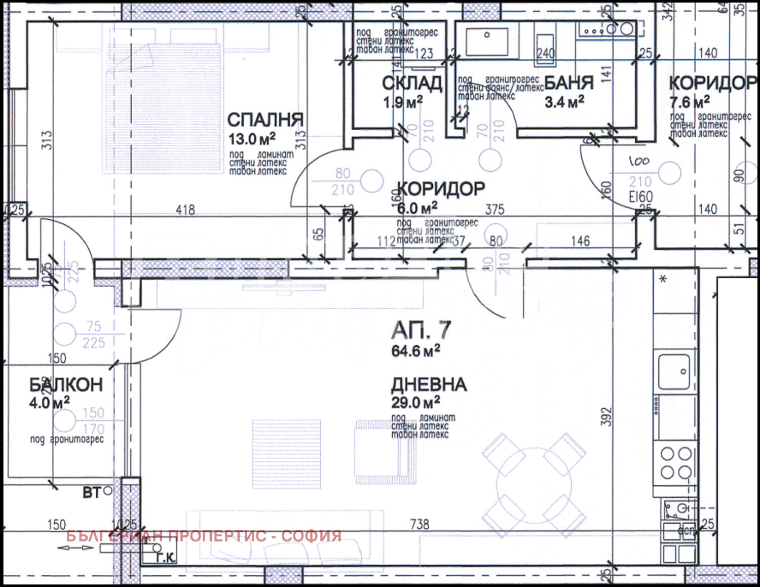
Предлагаме за продажба двустаен апартамент с западно изложение, разположен в бутикова нова сграда в един от най-динамично развиващите се и търсени райони на София кв. Малинова долина, в непосредствена близост до Арката на Националната спортна академия (НСА).
Локацията е сред основните предимства на имота. Районът осигурява бърз и удобен достъп до Студентски град, бул. Климент Охридски , Симеоновско шосе и Околовръстен път, което прави апартамента изключително подходящ както за лично ползване, така и за инвестиция с висока доходност от наем. Допълнително удобство е наличието на голям хранителен магазин точно срещу сградата, което значително улеснява ежедневието.
Сградата е бутикова, с ограничен брой апартаменти едва 22 жилища, което гарантира спокойствие, по-висок стандарт на обитаване и усещане за уединение. Предвидени са подземни гаражи и надземни паркоместа, а общите части са изпълнени с висококачествени материали, декоративна мазилка и внимание към всеки детайл. Строителството е на финален етап, като Акт 16 се очаква в следващите месеци.
Апартаментът е разположен на втори етаж от пет и предлага функционално и добре балансирано разпределение: входно антре, светла и просторна дневна с кухненски бокс, комфортна спалня, балкон, баня с тоалетна и отделно мокро помещение. Западното изложение осигурява приятна следобедна светлина и уютна атмосфера.
Оглед на имота
Можем да организираме оглед на имота спрямо нашия график и възможностите за достъп до него. Заявете вашето желание за оглед, като се свържете с отговорния за офертата брокер по имейл или телефон.
Резервация на имота
Имотът може да бъде резервиран и свален от продажба със заплащане на депозит, след което се прекратява провеждането на огледи с други купувачи и започва подготовка на документите за сключване на предварителен и окончателен договор. Свържете се с отговорния брокер за подробна информация относно процедурата на покупка и начините за плащане.
Жилищен кредит
Ние си партнираме с водещите български банки и можем да ви свържем с техните консултанти за информация и кандидатстване за кредит.
...







