Без комисиона! Цени директно от инвеститор!
Гъвкави схеми на плащане | Етап на строителство: втора плоча
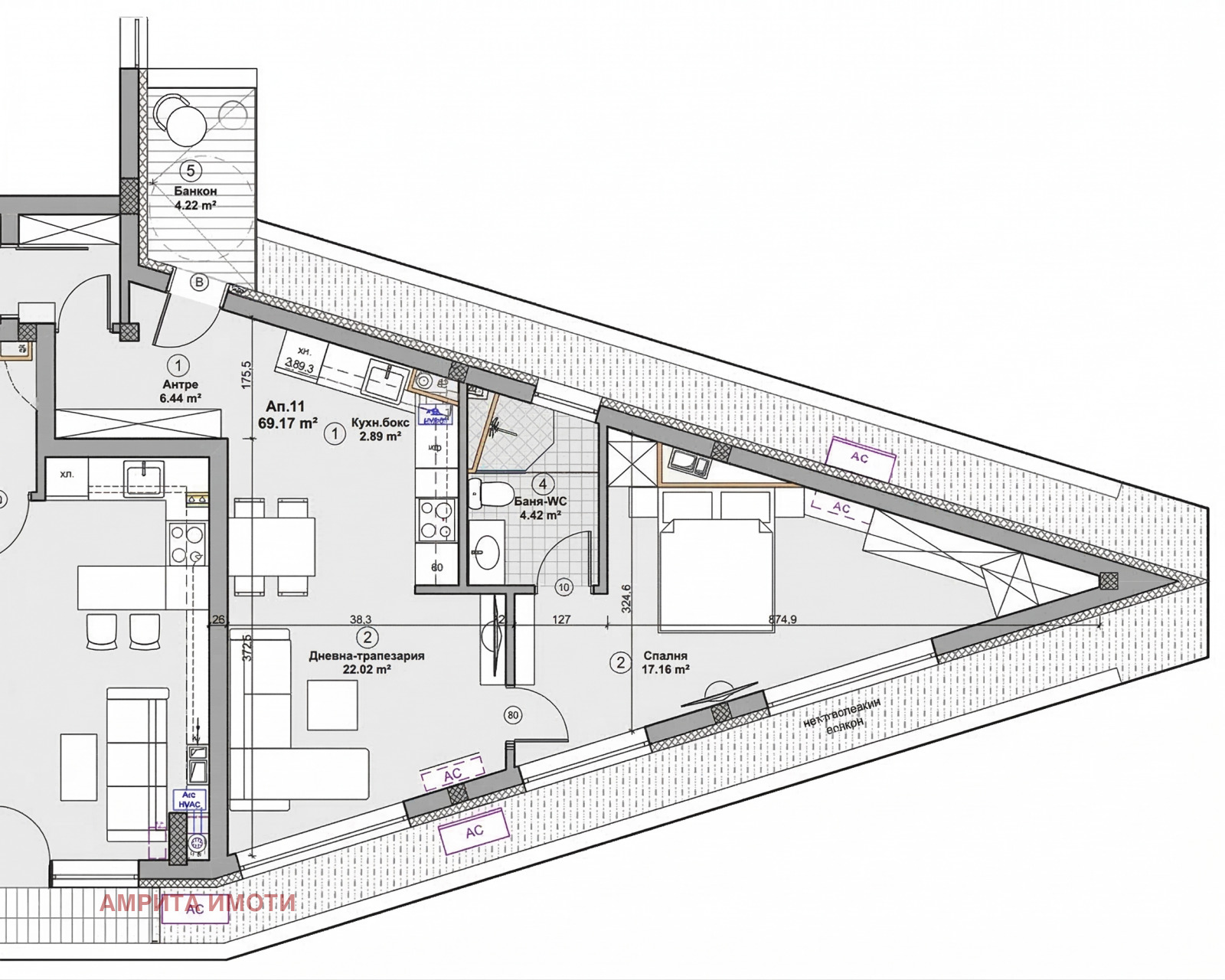
Амрита Имоти представя двустаен апартамент в кв. Витоша, бул. Симеоновско шосе . Имотът е част от бутиков жилищен проект, съчетаващ модерна архитектура и висок клас изпълнение.
Застроена площ: 69.17 кв.м
Обща площ: 81 кв.м
Входно антре;
Светла дневна с трапезария и кухненски бокс;
Спалня;
Баня с тоалетна;
Балкон, осигуряващ допълнително пространство и светлина.
Проектът се изпълнява с безкомпромисни материали: висококачествени френски прозорци, висок клас топлоизолация, гранитогрес на терасите и естествен гранит в общите части. За комфорта на живущите са предвидени шумоизолация, газово отопление + изводи за мултисплит климатична система, видеонаблюдение, домофонна инсталация и модерен асансьор с авариен стоп механизъм.
Проектът:
Бутикова 6-етажна сграда с ограничен брой апартаменти, проектирана да осигури максимален уют и престиж на своите обитатели.
Изпълнител: Абекс Груп ООД
Очакван Акт 16: април 2027 г.
Възможност за закупуване на подземни паркоместа на цени от 30 000 евро.
За оглед и допълнителна информация: 📞 0885600523 - Иво Гешев



