!!!МОДЕРНА ВИЗИЯ!!! БУТИКОВА СГРАДА!!! ВИСОКО КАЧЕСТВО!!!
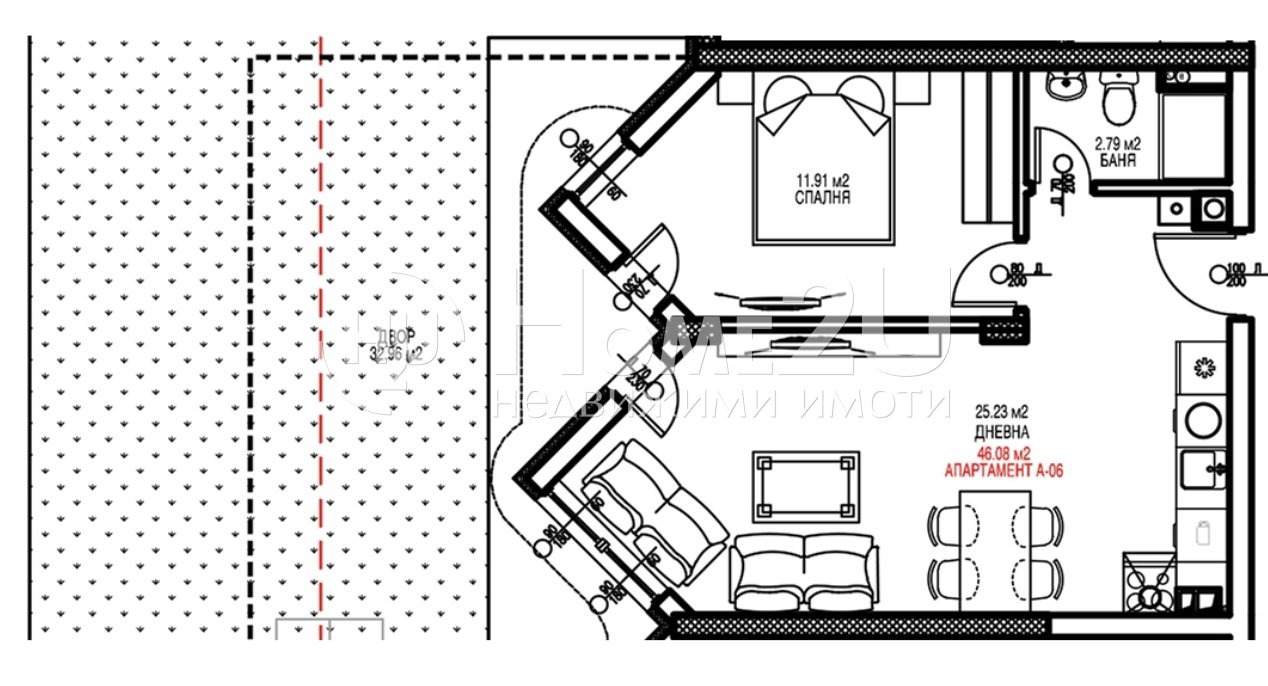
Home2U представя на Вашето внимание двустаен апартамент с прилежащ двор 32,96 кв.м., разположен на партер от четири етажа във висококачествена сграда пред АКТ 15 .Сградата е разположена в много тиха част на квартала, сред каре от идентични сгради. В комплекса са предвидени места за отдих, детски площадки и озеленени пространства.От комплекса има бърза връзка към Околовръстен път и бул.'Симеоновско шосе'. Намира се на 190м. от бъдеща метростанция .Има 10 см. изолация от каменна вата, шумоизолация на преградните стени и шумоизолираща мембрана на пода. Френски прозорци с немска дограма Rehau, 6-камерна,троен стъклопакет, 4 сезона Ка стъкло. Отоплението е предвидено с инверторни климатици General Fujitsu във всички помещения!Апартамента е с западно изложение, което го прави изключително светъл и топъл и е със следното функционално разпределение: входно антре, баня с тоалетна, , спална и дневна с балкон. За Ваше улеснение прилагаме схема на разпределение.ОЧАКВАН АКТ 16 КРАЯ НА 2026Г . Има опция да се закупи надземно паркомясто на цена от 19000евро . За повече информация или да запазите час за оглед, моля обадете се сега и цитирайте този код: 256260



