📌 Референтен номер: 2093429.
📌 50% СЕГА и 50% на АКТ 16!
❗ Революшън Естейт Ви представя двустаен апартамент в затворен комплекс В СТРОЕЖ в Центъра на София! ❗
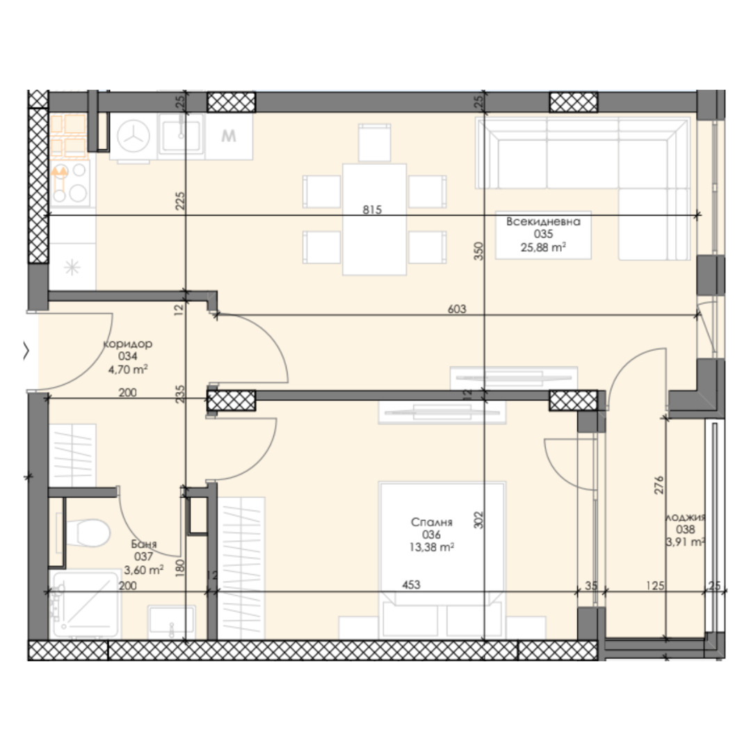
🔷 Квадратура: ЗП - 59.63 кв.м. РЗП - 70.38 кв.м.
🔷 Етаж: 3-ти от 14-ти
🔷 Изложение: Изток.
🔷 Разпределение: входно антре, всекидневна с кухненски бокс, спалня, баня с тоалетна, лоджия.
🔷 Отопление: електричество.
🔷 Очаквано завършване: 2027г.
🔷 В ЦЕНАТА на имота е ВКЛЮЧЕНО МАЗЕ!
🔷 Имотът се предлага ЗАЕДНО с ПОДЗЕМНО ПАРКОМЯСТО на цена от 37000 евро.
✨В близост до сградата ще намерите:
- 67 ОУ В. Друмев ;
- Парк 'Възраждане';
- ДГ 119;
- Мол София.
📞 Информация за горепосочения имот, може да получите чрез формата на запитване или чрез директна връзка с нас на посочения телефон.







