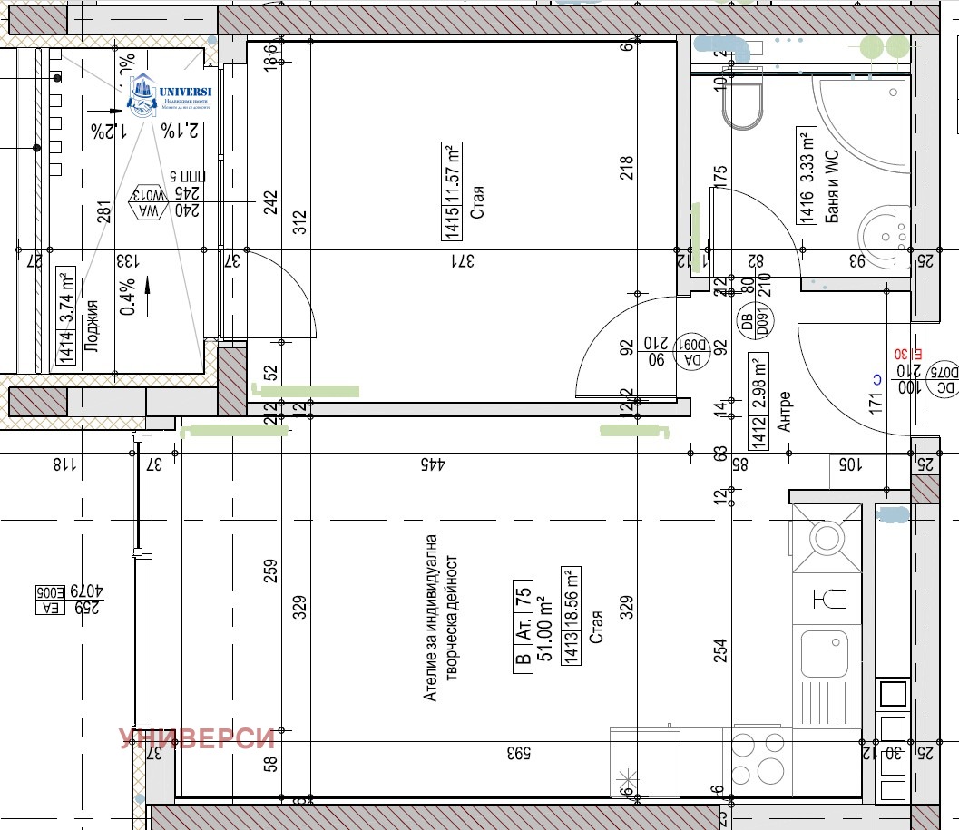
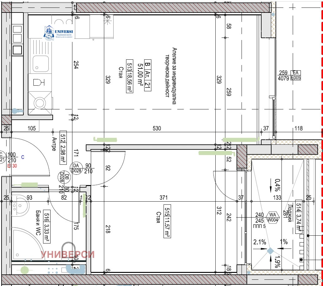
Ат.21, 57,74,75
Продаваме изключително светло, двустайно ателие, находящо се в к-с 1 Home , на ул. Охридско езеро.
Изложението е североизточно.
Застроената площ е 51m2.
Имоти с такова разпределение продаваме на 5-ти, 11-ти и 14-ти етажи.
На 5-ти етаж гледката е към озеленен двор и междублокови пространства, а на по-високите етажи към западната част на града и Стара планина .
Отоплението и топлата вода са предвидени да са от ТЕЦ.
Налични са разводки за климатици и бойлер.
В комплекса продаваме общо девет двустайни ателиета, един двустаен апартамент, четири подземни паркоместа и складови помещения.
Всички имоти са собственост на фирма, различна от инвеститора. Продажните цени са с включен ДДС.
Още наши оферти можете да намерите на www.universi.bg



