БИЛДИНГ БОКС предлага за продажба тристаен апартамент в новострояща се сграда, пред АКТ 15, на бул. 'Ботевградско шосе'.
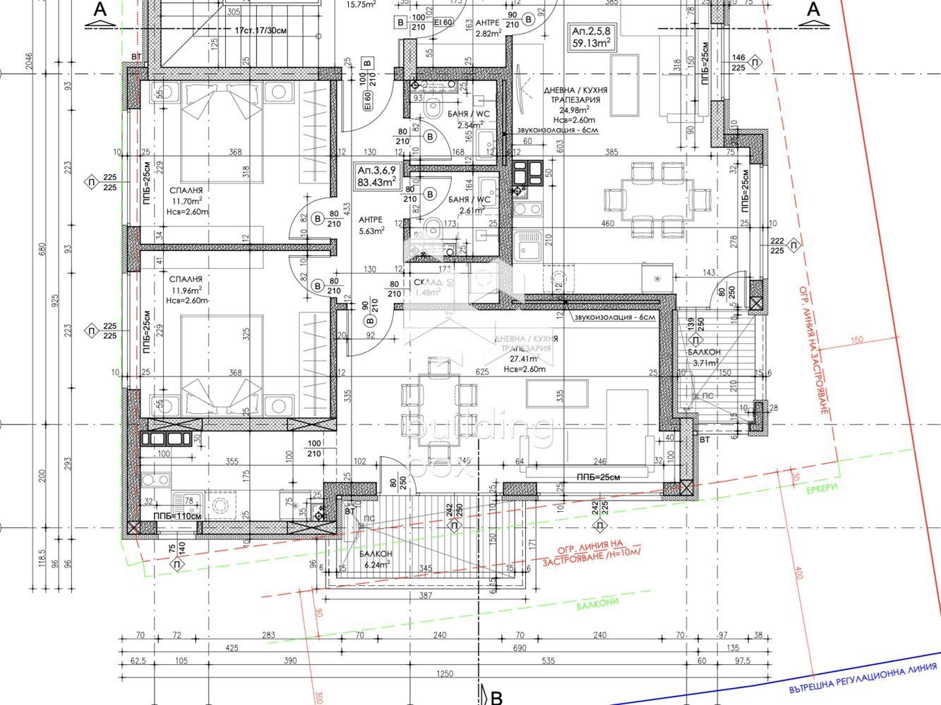
Разпределението на апартамента е следното: Антре, добре зонирана дневна с трапезария и кухненски бокс, две самостоятелни спални, баня с тоалетна, балкон.
Изложение: Изток / Запад / Север
Имотът се предлага в следното състояние:
- Входна блиндирана врата;
- Под: циментова замазка;
- Стени и тавани: гипсова мазилка;
- Тераси/балкони: гранитогрес;
- Дограма: 6-камерна ПВЦ с троен стъклопакет;
- Изградени ел. и ВиК инсталации;
- Слаботоково окабеляване, звънчева и домофонна инсталация;
- Отопление: на ток + изводи за климатици в дневната.
Изпълнението на проекта е следното:
- 5 етажа (4 жилищни + партер с паркоместа);
- Хидравличен асансьор;
- Видеодомофонна система с контрол на достъпа;
- Фасада с полимерна мазилка;
- Общи части: гранитогрес, висококачествено осветление;
- Строителство: тухли 'Wienerberger' (25 см външни, 12 см вътрешни);
- Очакван Акт 16: Пролет 2026 г.
Паркоместа (задължителни)
- Етаж партер, на цени от 18 225 до 37 759
Локация:
- Хранителни магазини, училища, медицински центрове, градски транспорт - Трамвай 22, Автобуси 79, 90.
БИЛДИНГ БОКС предоставя безплатна консултация и съдействие при финансиране на избрания от Вас имот.
Оферта 27432







