БИЛДИНГ БОКС предлага за продажба двустаен апартамент в новострояща се сграда, пред АКТ 15, на бул. 'Ботевградско шосе'.
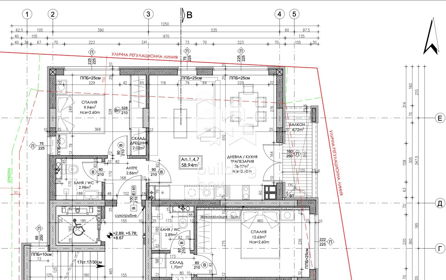
Имотът се състои от: антре, дневна с трапезария и кухненски бокс, спалня, баня с тоалетна, балкон, и е със застроена площ от 58.94 кв.м.
Изложение: Изток / Запад / Север
Апартаментът се продава в следното състояние:
- Входна блиндирана врата;
- Под: циментова замазка;
- Стени и тавани: гипсова мазилка;
- Тераси/балкони: гранитогрес;
- Дограма: 6-камерна ПВЦ с троен стъклопакет;
- Изградени ел. и ВиК инсталации;
- Слаботоково окабеляване, звънчева и домофонна инсталация;
- Отопление: на ток + изводи за климатици в дневната
Изпълнението на проекта е следното:
- 5 етажа (4 жилищни + партер с паркоместа);
- Хидравличен асансьор;
- Видеодомофонна система с контрол на достъпа;
- Фасада с полимерна мазилка;
- Общи части: гранитогрес, висококачествено осветление;
- Строителство: тухли 'Wienerberger' (25 см външни, 12 см вътрешни);
- Очакван Акт 16: Пролет 2026 г.
Паркоместа (задължителни)
- Етаж партер на цени от 18 225 до 37 759
БИЛДИНГ БОКС предоставя безплатна консултация и съдействие при финансиране на избрания от Вас имот.
Оферта 27432







