Референтен номер: SOF-130553
Представяме двустаен апартамент с акт 14 в нов жилищен проект, разположен в югозападната част на София, в развиващия се ж.к. 'Овча купел 2', в подножието на Витоша.
Този модерен затворен комплекс предлага високо качество на живот и сигурност. Той се състои от 7 жилищни сгради, изпълнени по съвременни строителни стандарти. Всяка сграда е оборудвана с асансьор, осигуряващ достъп и до подземните нива.
Комплексът се отличава с отлична локация, намирайки се само на 300 метра от метростанция 'Горна Баня', което осигурява бърза и удобна връзка с центъра на града и други райони. В непосредствена близост са разположени търговски обекти като Lidl и Billa, както и болница 'Доверие', което допринася за комфорта на ежедневния живот.
Описание на апартамента
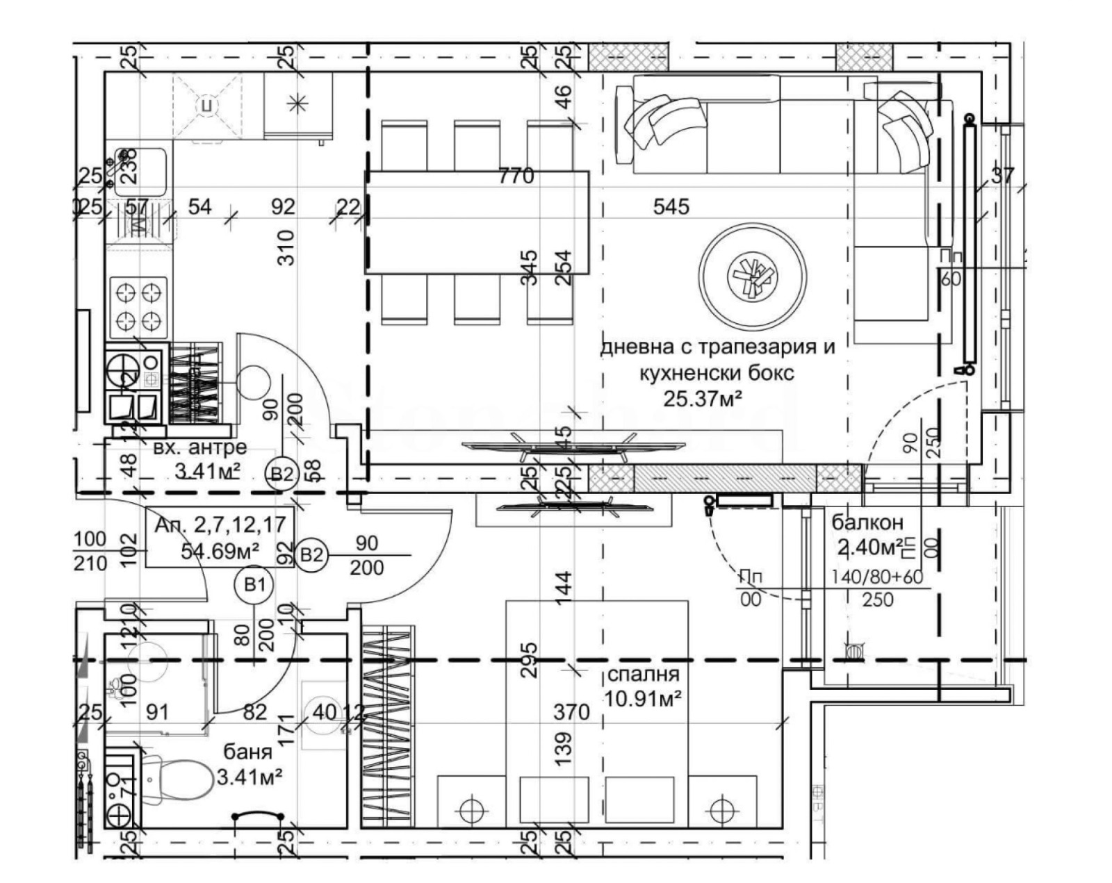
Апартаментът е разположен на 2-ри етаж и е с обща площ 63 кв.м, от които 8 кв.м са общи части.
Функционалното разпределение включва:
Дневна с трапезария и кухненски бокс;
Спалня;
Баня с тоалетна;
Коридор;
Тераса.
Характеристики на комплекса
Проектът е фокусиран върху осигуряването на висока степен на шумо- и топлоизолация. При строителството е използвана висококачествена немска 6-камерна PVC дограма с троен стъклопакет. Фасадите са изпълнени с 12 см топлоизолация BAUMIT, гарантираща енергийна ефективност.
Предвидено е топлоснабдяване от централна отоплителна система (ТЕЦ).
Вътрешният двор на комплекса е с площ 10 дка и включва детска площадка за най-малките жители.
Състояние на имота при издаване
Апартаментите се предават в степен на завършеност по БДС на шпакловка и замазка, с монтирани блиндирани входни врати. Има изградена възможност за монтаж на климатик, като са положени необходимите тръбни и електрически инсталации.
План за строителството
Комплексът е в процес на строителство, като се очаква получаване на АКТ 16 през 2026 г.
За повече информация свържете се с нас и цитирайте референтния номер на имота. Моля, кажете, че сте видeли обявата в този сайт.
Референтен номер: SOF-130553
Тел: +359 889 007 010
Моб: +359 877 777 888 (WhatsApp, Viber, SMS)
Отговорен брокер:Стоунхард ПРЕМИЪР
Без комисиона от купувача







