Референтен номер: SOF-127284
Представяме двустаен апартамент в нов жилищен проект, който се изгражда в югозападната част на София, в полите на Витоша, в ж.к. 'Овча купел 2'. Това е модерен затворен комплекс с ограничен достъп, който предоставя високо качество на живот в 7 жилищни сгради, които се изграждат по най-новите строителни стандарти. Сградите разполагат с асансьор, който обслужва и подземните етажи, осигурявайки удобство за жителите.
Комплексът се намира на 300 метра от метростанция 'Горна Баня', което осигурява лесен достъп до градския транспорт. В непосредствена близост се намират хипермаркетите Lidl и Billa, както и болница 'Доверие', което прави локацията изключително удобна за ежедневни нужди.
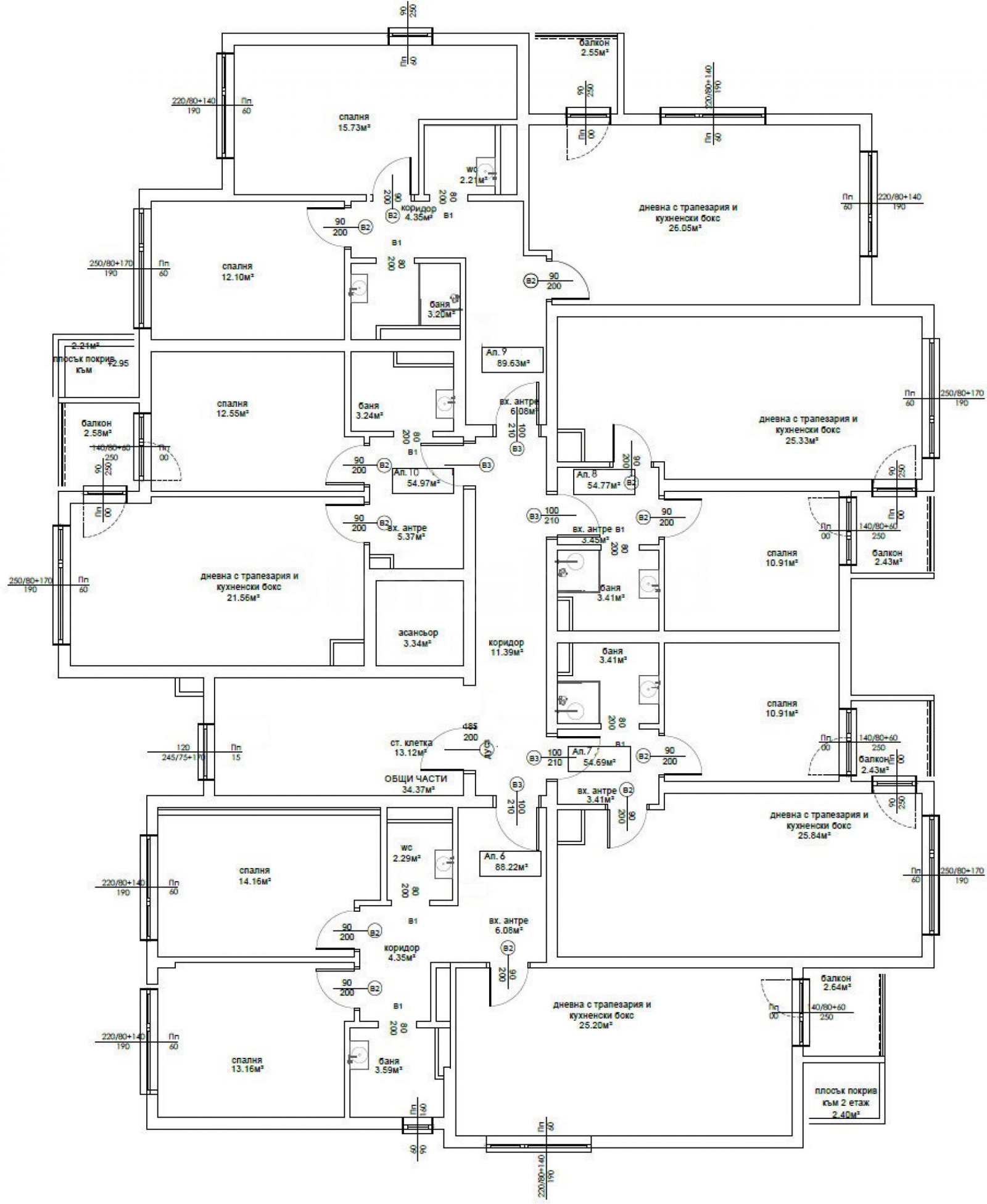
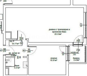
Апартаментът е разположен на 2-ри етаж и е с площ 63 кв.м, от които общите части са 8 кв.м.
Разпределението на двустайния апартамент е следното:
дневна с трапезария и кухня;
спалня;
баня с WC;
коридор;
тераса.
За комплекса
Комплексът се изгражда с акцент върху шумо- и топлоизолацията. Използвана е висококачествена немска 6-камерна PVC дограма с троен стъклопакет, осигуряваща отлична изолация. Фасадите са проектирани с 12 см топлоизолация BAUMIT, което гарантира енергийна ефективност.
Комплексът ще бъде топлофициран.
Комплексът разполага с вътрешен двор с площ 10 дка и детска площадка.
Апартаментите се издават по БДС, на шпакловка и замазка, с монтирани блиндирани входни врати. Предвидена е възможност за поставяне на климатик, като всички необходими тръбни и електрически разводки вече са изпълнени.
Има възможност да се закупи допълнително и паркоместо.
План на строителство
Комплексът е в процес на строителство с очакван АКТ 16 през юли 2028 г.
Цената на имота е 138 000 евро / 269 904.54 лв. без ДДС или 165 600 евро / 323 885.45 лв. с ДДС. Данъчен кредит може да се ползва при определени условия.
За повече информация свържете се с нас и цитирайте референтния номер на имота. Моля, кажете, че сте видeли обявата в този сайт.
Референтен номер: SOF-127284
Тел: +359 889 007 010
Моб: +359 877 777 888 (WhatsApp, Viber, SMS)
Отговорен брокер:Стоунхард ПРЕМИЪР
Без комисиона от купувача







