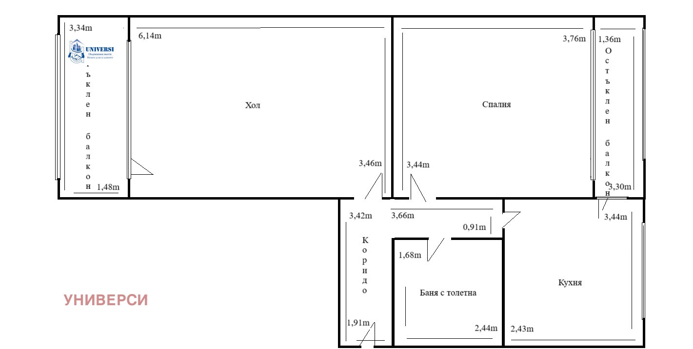
Продаваме непреходен, двустаен апартамент.
Жилището се намира на 6-ти етаж от 8, вътрешно е и изключително топло.
Изложенията са Югозапад/Североизток, като от всички стаи има панорамни гледки.
Разпределението на имота позволява лесното му преустройство в практичен, тристаен апартамент.
Сградата, в която се намира жилището е панелно строителство, от началото на 80-те години.
Общите части на входа се поддържат в изключително добро състояние. Подменени за входните врати, звънчевата и домофонна инсталации, дограмата, водопроводните щрангове, както и задвижващатата система на асансьора.
Стълбищните и етажните площадки са шпакловани и боядисани, като чистотата се поддържа на високо ниво.
Около бл. 84 са налични просторни зелени площи, с обновени детски площадки и множество места за паркиране.
В близост има детски градини, училища, големи магазини, спирки на наземен транспорт, а скоро и метростанция.
Още наши оферти можете да намерите на www.universi.bg



