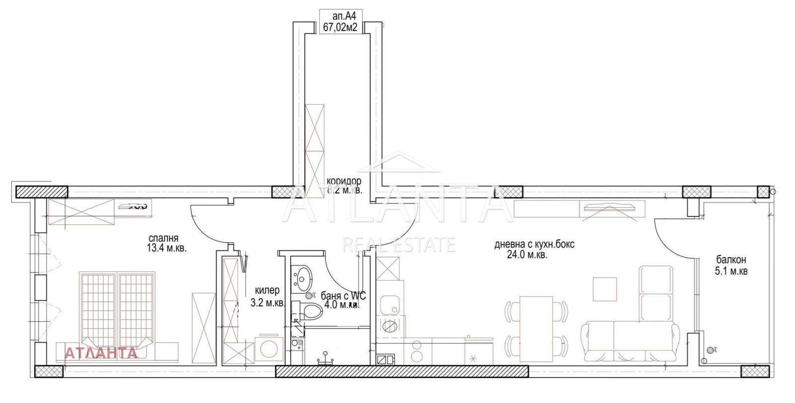
2-Стаен / 24м2 всекидневна / 2 Мокри Помещения / Втори етаж / Правилни Форми / Качествено Строителство
Реф. - CV - 5514
Предлагаме ви Двустаен апартамент в динамично развиващ се район с реална квадратура и гъвкави схеми на плащане!
Предимства на сградата:
Водещ строител на пазара с богат опит и широко портфолио
Строителство с качествени материали - съвременни инженерни стандарти с армирани бетонни елементи и надеждна изолационна система
Локацията предоставя бърз достъп до бул. Цар Освободител и бул. Трети Март
Всички апартаменти са с правилни форми и големи квадратури
Подземни и външни паркоместа
Търговски обекти на партерно ниво за удобство на живущите
Функционална архитектура, осигуряваща светлина и простор
Гъвкави схеми на плащане
Завършване на строителството до 36 месеца!
Свържете се с нас за повече информация!







