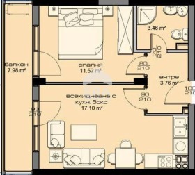
ЕКСКЛУЗИВНО! ДВУСТАЕН АПАРТАМЕНТ В К-С ГАРДЪН РЕЗИДЕНС, С АКТ 16, НА 100 М ОТ БУЛ. ТРЕТИ МАРТ. ЕРА Варна Тренд предлага за продажба двустаен апартамент в жилищна сграда Гардън Резиденс. Имотът е със застроена площ 49,04 кв.м по нотариален акт (58,82 кв.м с общите части), разположен на девети, последен етаж. Разпределението е изключително функционално, без никакви скосения или неправилни форми. Състои се от входно антре (3,76 кв.м), дневна с кухненски бокс (17,1 кв.м), спалня (11,52 кв.м), като двете стаи са с излаз на общ балкон (7,98 кв.м), баня с тоалетна (3,46 кв.м) и прилежаща изба (2,05 кв.м). Изложението е запад. Открива се гледка към Варненското езеро.
Жилището се продава необзаведено, завършено до степен БДС, с поставена ПВЦ дограма, входна блиндирана врата и домофонна система. Отоплението е с електричество.
Двустайният апартамент се намира в жилищен комплекс Гардън Резиденс, в близост до жк Кайсиева градина и бул. Трети март, уютно отделен от шумотевицата и напрежението в кварталите и основните пътни артерии. Сградата е девететажна, тухлена, с асансьор и качествено изпълнени общи части, въведена в експлоатация (Акт 16) през 2025 г. Проектът е разгърнат в четири сгради, с обща застроена площ от 1750 кв.м, които са събрани в парцел с големина 5300 кв.м. За удобството на всички живущи са предвидени много зелени площи, както и развлекателни места за най-малките. Жилищните сгради са изпълнени по най-съвременни способи, съгласно последните изисквания и нормативи за устойчивост, топлоизолация и пригодност за живеене. Към предлаганото жилище се закупува подземно паркомясто (18,27 кв.м), на цена 19 900 евро, тип клетка, което може да се затвори с врата и да стане самостоятелен гараж. Има и 21,44 кв.м маневрена площ към него, или площта с общите части възлиза на 44,38 кв.м.
Агенцията разполага с ключ за огледи.
Оферта 0221968



