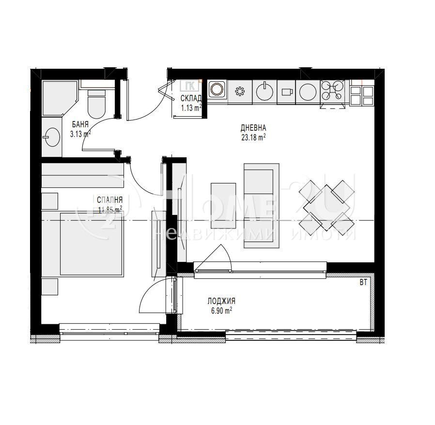
Предлагаме Ви за покупка безкомпромисно двустайно жилище с правилни форми и отлично разпределение. Имотът е изцяло южен слънчев, топъл и с изключително приятна гледка и усещане за простор.Сградата се отличава с модерна визия, иновативна архитектура и прецизност до най-малкия детайл. Намира се на една от най-познатите улици в града ул. Мир в кв. Левски!
Комплексът разполага с големи отстояния от съседни сгради, осигуряващи простор и комфорт. Предвидени са два етажа закрит паркинг, всеки със самостоятелен вход.
Към апартамента се предлага просторно паркомясто с възможност за зареждане на електромобил. Паркирането е осигурено в просторен закрит паркинг с двупосочно движение, широки маневрени зони и директен достъп от улицата чрез бетонна рампа.
Обадете се и цитирайте този код:133910
Виж всички обяви в home2uvarna.bazar.bg или тук



