АКТ 14!! СРЕДЕН ЕТАЖ!! ЛЕВСКИ!!
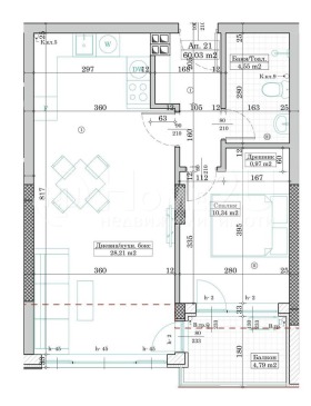
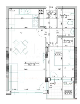
Предлагаме за продажба двустаен апартамент в новоизградената сграда с АКТ 14 от утвърден строител с реализирани обекти в града. Жилището е разположено на пети етаж от общо десет.
Локация:
Сградата се намира в квартал Левски, в непосредствена близост до:
Технически университет
Супермаркет Lidl
Две болници и специализираната очна клиника Света Петка
Спортен комплекс
Основно училище и детска градина
Комбинацията от образователни, здравни и спортни институции прави имота подходящ както за лично ползване, така и за инвестиция с гарантирана доходност. Районът е сред най-бързо развиващите се в града, с потенциал за нарастване на стойността на квадратен метър.
Допълнителна информация:
Възможност за покупка с банков кредит
Качествено строителство от доказан инвеститор
Имот с 100089







