Локация: кв. Самара 3
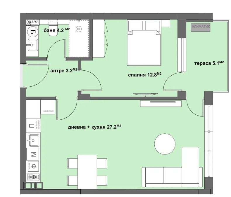
Характеристики: Представяме на вашето внимание новострояща се сграда с АКТ-14 от утвърден строител. Двустаен апартамент разположен на шести етаж в сграда с асансьор. Отлични разпределения, предоставящи функционалност и рационално усвояване на пространствата, и светла височина на етажите 2,60м, благоприятни изложения. Имотът се състои от просторно входно антре, просторна слънчева всекидневна с кухненски бокс, спалня, баня с тоалетна и тераса.
Обща площ: 65,71 кв.м.
Агенция PS Property предлага БЕЗПЛАТНА консултация и съдействие при ипотечен или потребителски кредит, като услугата не е обвързана с покупка на имот.
Виж всички обяви в psproperty.bazar.bg или тук
        
       
         
         
         
         
             
             
             
            






