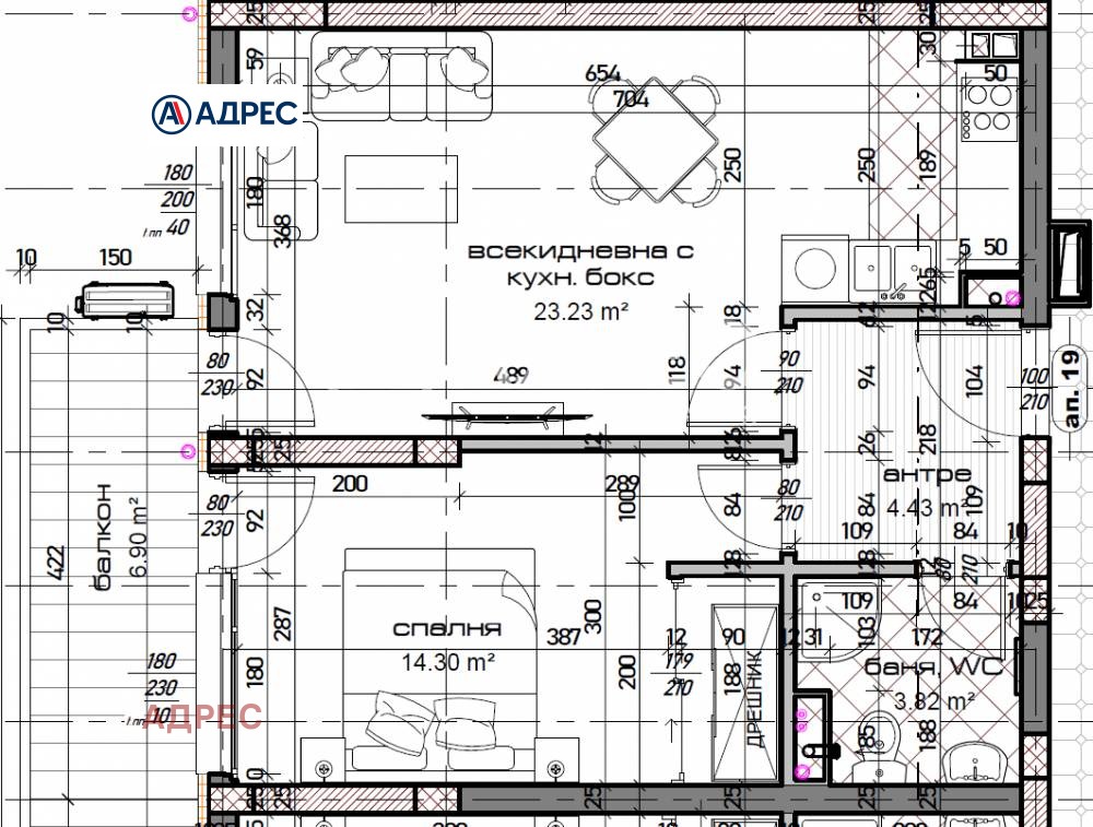
Двустаен апартамент, в нов изключително луксозен жилищен проект, с отлична локация в кв. Младост. Жилището се състои от дневен тракт 23 кв.м, спалня 14 кв.м, баня с тоалет, дрешник, тераса. Завършен по БДС на шпакловка и замазка, с блиндирана входна врата. Възможност за закупуване на закрито или открито паркомясто или гараж. Сградата предлага двустайни и тристайни апартаменти, които са подходящи както за лично ползване, така и за инвестиция.
Отлично местоположение с уредена среда и градски транспорт. Квартал Младост е динамично развиващ се квартал, предпочитан, както за живеене, така и за инвестиция. В близост до парк , хипермаркети и супермаркети, детски училища, детски градини, медицински центрове, аптеки и др., са само една малка част от добре развитата инфраструктура и изградена комуникация.
Сградата ще се състои от два входа с модерна архитектурна визия и безкомпромисно качество на строителство.
Апартаментите са с разнообразно изложение и функционално разпределение. Стаите са с правилни форми, лесни за обзавеждане. Сградата е обезпечена с достатъчно паркоместа и гаражи, които създават максимален конфорт на живущите. Много зеленина и околоблоково пространство.
Обади се сега и цитирай този код 613751







