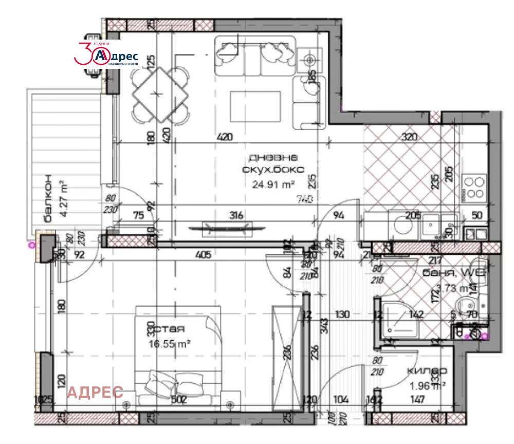
Двустаен апартамент със ЗП- 63,82 кв.м., а с общите части 77,71 кв.м. Разполага с антре, дневна с кухненски бокс, спалня, баня с тоалет, килер и балкон.
Сградата се намира в предпочитаният за живеене от много варненци квартал Младост. Района предлага множество удобства, като хипермаркет, търговски центрове, училища, детски градини, поликлиника и развита транспортна инфраструктура.
Сградата е с уникална архитектура за град Варна, а височина от над 61 метра я прави от най-високите жилищни сгради в града. За удобство на клиентите сградата ще разполага с 6 просторни асаньора. Висококачествените и енергоспестяващи материали, ще осигурят, както комфорта така и максимално намаляване на месечните разходи по сметки за ток и отопление.
Обади се сега и цитирай този код 543002







