3mo Амалтея има удоволствието да Ви представи двустаен апартамент, разположен в елегантен бутиков комплекс с едва 15 апартамента в кв. Модерно предградие рядка находка за ценителите на уединението, простора и високия стандарт на живот. Планирано разрешение за ползване 2027-ма година.
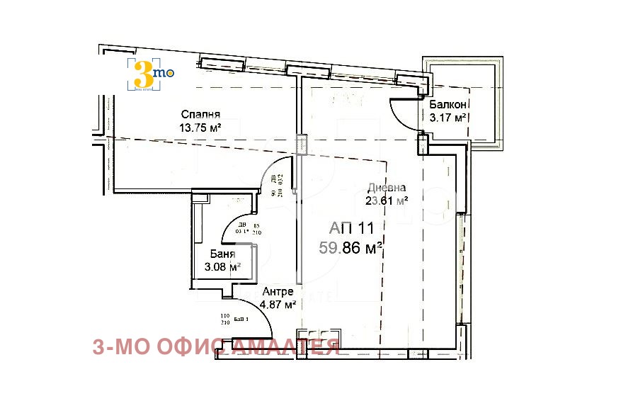
Жилището е с обща площ от 70,11 кв.м. (застроена площ 59,69 кв.м.) и се състои от: входно антре (4,87 кв.м.), просторна дневна с кухненски бокс (23,61 кв.м.), балкон (3,17 кв.м.), спалня (13,75 кв.м.) и баня (3,08 кв.м.).
Имотът е разположен на трети от общо четири етажа. Има изложение изток и север. Продава се в етап на завършеност по Ваш избор - по БДС, до ключ и готов за живеене или отдаване под наем. Възможно е закупуване на подземно паркомясто или гараж. Комплексът се намира в близост до Западния парк - отлично поддържан и богато озеленен градски парк, който разполага с широки алеи, обособени зони за отдих, пикник, детски площадки, площадки за четириноги приятелчета и присъствие на конна полиция с 24-часово видеонаблюдение, осигуряващи спокойствие и безопасност. Комплексът съчетава всички нужни удобства за съвременен градски живот: отлична инфраструктура, бърз транспортен достъп, зелени площи и усещане за общност. Поддръжката на комплекса включва: охрана 24/7, видеонаблюдение, озеленяване и почистване. Инвеститорът зад проекта е с дългогодишен опит и безупречна репутация в строителството на качествени жилищни сгради в страната, като използва материали от висок клас и съвременни технологии за изпълнение.
Оферта 971
Агенция 3mo Амалтея, заедно с лицензирания в БНБ кредитен посредник Кредит Навигатор, Ви предлага напълно безплатно съдействие за избор на най-изгодния кредит, специално съобразен с Вашите нужди.







