3mo Амалтея предлага за продажба двустаен апартамент на пети жилищен етаж, в новострояща се луксозна сграда в ж.к. Модерно предградие, в близост до бул. Сливница.
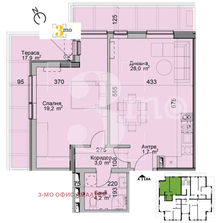
Имотът е с обща квадратура от 103 кв.м. и ЗП 88,5 кв.м. Разпределението на апартамента е както следва: входно антре (1,7 кв.м.), коридор (3 кв.м.), просторен хол с кухненски бокс и трапезария (28 кв.м.), спалня (19,2 кв.м.), баня с тоалетна (4,2 кв.м.) и голяма тераса (17,9 кв.м.).
Апартаментът се издава на шпакловка и замазка, с блиндирана входна врата марка СОЛИД 55. Към имота могат да бъдат закупени отделно паркомясто или гараж. Сградата има луксозни общи части и асансьор от висок клас с марка ORONA.
Има видео наблюдение и контрол на достъп.
Проектът включва общо 25 апартамента, всеки от които е със светли и функционални помещения. Към сградата ще има богато озеленена градина с обособени зони за отдих, детска площадка и заграждение за кучета.
Сградата е с отлично местоположение. Ж.к. Модерно предградие е район с добре изградена инфраструктура. В него са разположени училище, детска градина, поликлиника, големи вериги магазини. Налична е бърза транспортна връзка с главни столични булеварди.
Планиран Акт 16 април 2028 г.
Цената на имота е съобразена със схемата на плащане.
Оферта 853
3mo Амалтея, заедно с лицензирания в БНБ кредитен посредник КРЕДИТ НАВИГАТОР, предоставят на своите клиенти възможност да изберат най-изгодния ипотечен кредит при закупуване на своето жилище. Услугата е БЕЗПЛАТНА.







