Жилището се продава необзаведено. Ще бъде завършено до степен БДС. Отоплението ще бъде с електричество.
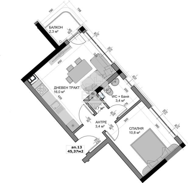
Двустайният апартамент се намира в долната част на жк Владиславово, в жилищен комплекс Фюжън 2. Сградата е 7-етажна, с асансьор, на етап строеж на междинни етажи, изпълнена с качествени материали, от доказал се на пазара инвеститор с множество построени сгради във Варна. Етапи на строителство: Откриване на строителна плащадка - 27.11.2024 г. Акт образец 14 - 31.10.2025 г. Акт образец 15 - 31.12.2026 г. Разрешение за ползаване (Акт 16) до 3 /три/ месеца от завършване на строежа и подписване на акт обр.15.
СТЕПЕН ЗА ЗАВЪРШЕНОСТ
Общи части на сградата: подови настилки и стъпала от гранитогрес или гранит; стени - декоративна мазилка; асансьор - ORONA;
Апартаменти: вътрешни стени - тухла с гипсова мазилка; тавани гипсокартон; под на стаи - циментова замазка; баня-тоалет: под циментова замазка, стени вароциментова мазилка; ел. инсталация завършена напълно до ключове, контакти, оптичен кабел до апартамент; В и К инсталации завършени до тапа; Изграждане на тръбни връзки за монтаж на климатици, на определени по архитектура места. Външна врата блиндирана с облечена декоративна каса; Прозорци: Висококачествена PVC дограма - 5 или 6 камерна с двойни стъклопакети ширина 32 мм, 6 мм четири сезона/4 мм бяло флоатно стъкло, подпрозоречни первази.
Оферта 0221502
Виж всички обяви в varnatrend.bazar.bg или тук



