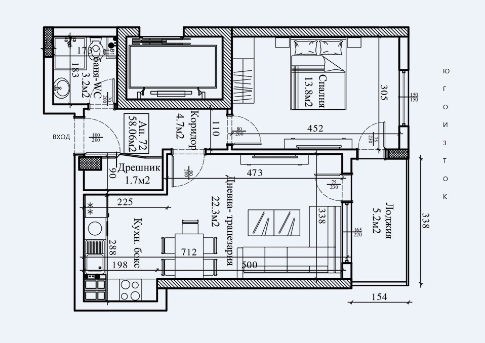
ДВУСТАЕН, ОБЗАВЕДЕН, ЮГОИЗТОЧЕН АПАРТАМЕНТ С МОРСКА ПАНОРАМА, В К-С СИМФОНИЯ. ЕРА Варна Тренд предлага за продажба двустаен апартамент със застроена площ 58,06 кв.м (69,06 кв.м с общите части), разположен на 13-и етаж от общо 16 етажа, с югоизточно изложение и красива морска панорама. Намира се в жилищен комплекс Симфония, в долната част на кв. Бриз, на метри от Морската градина. Имотът се състои от дневна с кухненски бокс (22,3 кв.м), спалня (13,8 кв.м), обща за двете стаи лоджия (5,2 кв.м), коридор (4,7 кв.м), баня с тоалетна (3,2 кв.м) и дрешник (1,7 кв.м).
Жилището се продава обзаведено и оборудвано с ел. уреди - вградена фурна с керамични котлони и аспиратор, съдомиялна машина, пералня, хладилник, климатици в стаите. Подовите покрития са ламинат и теракот. Поставена е ПВЦ дограма. Монтирана е видеодомофонна система. Имотът е подходящ и за инвестиция чрез отдаване под наем (дългосрочно или за нощувки).
Двустайният апартамент се намира в жилищен комплекс Симфония. Сградата е 16-етажна, тухлена, с високотехнологичен асансьор, луксозно изпълнени общи части с качествени материали и контролиран достъп. Въведена е в експлоатация (Акт 16) през 2021 г. В партерната част има два магазина и кафене. Също така озеленен по проект двор, с много растения, дървета и отлично осветен, с детска площадка. Паркира се свободно в района. На 15 минути от центъра на гр. Варна, разположен на пешеходно разстояние от Морската градина и плажа, комплексът предлага уют, спокойствие и лукс сред природата, в съчетание с панорамна гледка към морето. Сградата е с бърз и лесен достъп от два главни булеварда - Васил Левски и Княз Борис I, осъществяващи връзка с централната част и кварталите на Варна, както и курортните комплекси на север от града.
Оферта 0222005







