Translations in other languages:
All real estate ads published on imot.bg have been translated into English and published on the partner site
Получихте нова обява по филтър





Промяна на цена на наблюдавана обява


стара цена
нова цена
imot.bg – обяви за продажби и наеми на имоти
Сайт за имоти №1
Translations in other languages:
All real estate ads published on imot.bg have been translated into English and published on the partner site
ДОБАВИ ОБЯВА Редакция на обява
Начало Публикуване Търсене Нови сгради Агенции Новини Кредити + Още... Моят имот
Продава 2-СТАЕН
град София, Люлин 5
бул. Добринова скала
142 450 €
278 607.98 лв.

(1 850 €, 3 618.29 лв./m2)
Цената е с включено ДДС
Коригирана в 8:40 на 24 октомври, 2025 год.
Обявата е посетена 11528 пъти.
Площ:
77 m2
Етаж:
7-ми от 10
ТEЦ:
ДА
Строителство:
Тухла, Ще бъде въведен в експлоатация 2026 г.

Описание на имота:


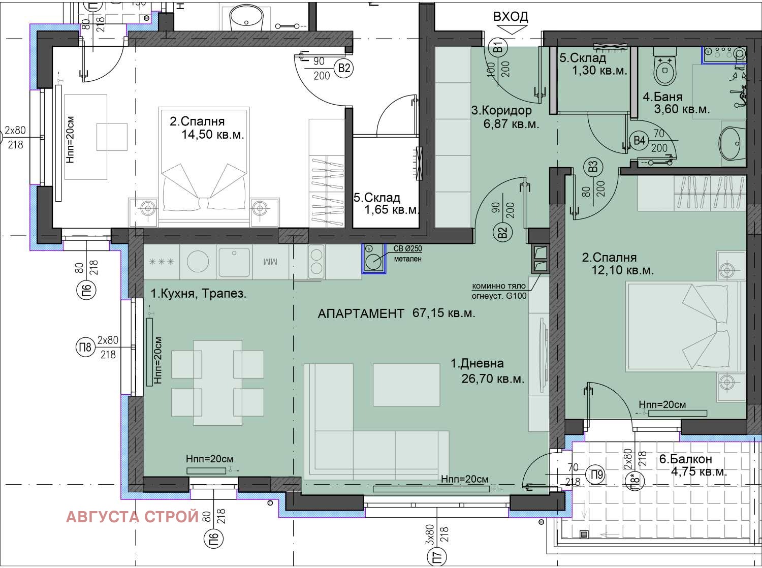
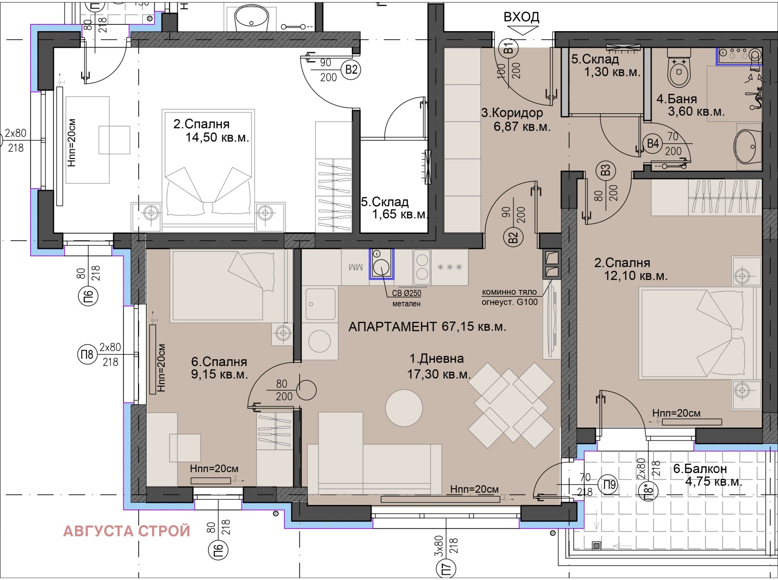
ДИРЕКТНО ОТ ИНВЕСТИТОР!БЕЗ КОМИСИОННА ОТ КУПУВАЧА1 Пред АКТ 15! ЧЛ. 181 ЗА ЗАВЪРШЕН ГРУБ СТРОЕЖ! СТРОИТЕЛНА ФИРМА продава двустаен (АП.36). Чиста жилищна площ 67,15 кв.м, с общите части 77 кв.м. Дневната е с ъглови прозорци, което позволява преграждането й с гипсокартон, портални врати, стъклени тухли и др. и оформянето на млака спалня светла спалня, кабинет. Състои се от складово помещение, баня с тоалетна, балкон, дневна с кухня и спалня. Просторно антре с място за много голям гардероб. Хубаво изложение: дневна - запад и юг, основна спалня - юг. Апартамент 36 се намира на седми етаж, като от прозорците му се разкриват гледки към Витоша и полето на Банкя. И наистина, въздушното течение от Банкя не е мит, въздухът тук е чист и постоянно се обновява. Акт 16- март 2026 г. Разсрочена схема на плащане. Сградата се строи от доказан инвеститор с осем построени и въведени в експлоатация сгради в София. Намира се на бул. Добринова скала срещу блок 523. Перфектен достъп по основни булеварди: бул. Царица Йоана, бул. Д-р Петър Дертлиев, бул. Сливница и Околовръстното. Наблизо са много от големите вериги, детски градини, училища, фитнес зали. Колелото на автобус 310 и на още няколко автобусни линии е на 2 минути от блока. Предстои изграждане на Метростанция Добринова скала, която е на пешеходно разстояние от сградата. тел.: 0877501722
Виж всички обяви в avgusta_stroy.bazar.bg или тук
Особености
Тухла
За контакт:
0877501722
Строителна фирма:
АВГУСТА СТРОЙ
0877501722
В imot.bg от 2024 г.
Адрес:
област София, гр. София, София ул. Панагюрище 40
http://[email protected]
ИЗПРАТИ ЗАПИТВАНЕ
ИЗПРАТИ ЗАПИТВАНЕТО

Продава 2-СТАЕН
град София, Люлин 5
бул. Добринова скала
Обява: 1b173088204288772

142 450 €
278 607.98 лв.
(1 850 €, 3 618.29 лв./m2)

Цената е с включено ДДС
ЗАПАЗИ ОБЯВАТА

Местоположение: град София, Люлин 5, бул. Добринова скала

Виж още имоти от София или още Двустайни Апартаменти в София
Допълнителни данни за имотите в района и сравнение с други райони: Търсене в АРХИВ 2013 - 2025 г.











Добави/редактирай
вид имот и район
*Средните цени са определени чрез медиана стойност.
КОНТАКТИ | SMS КОДОВЕ | СТАТИСТИКА | ПОМОЩ | ОБЩИ УСЛОВИЯ | РЕКЛАМА | ТОП ОФЕРТА | Въпроси и предложения към imot.bg
Резон Медия | Имоти | Автомобили | Работа | Новини | Обяви | Преводи и легализация 2002-2025 ® Copyright imot.bg
© imot.bg ползва и препоръчва хостинг услугите на Bulinfo.net
Следвайте ни в: