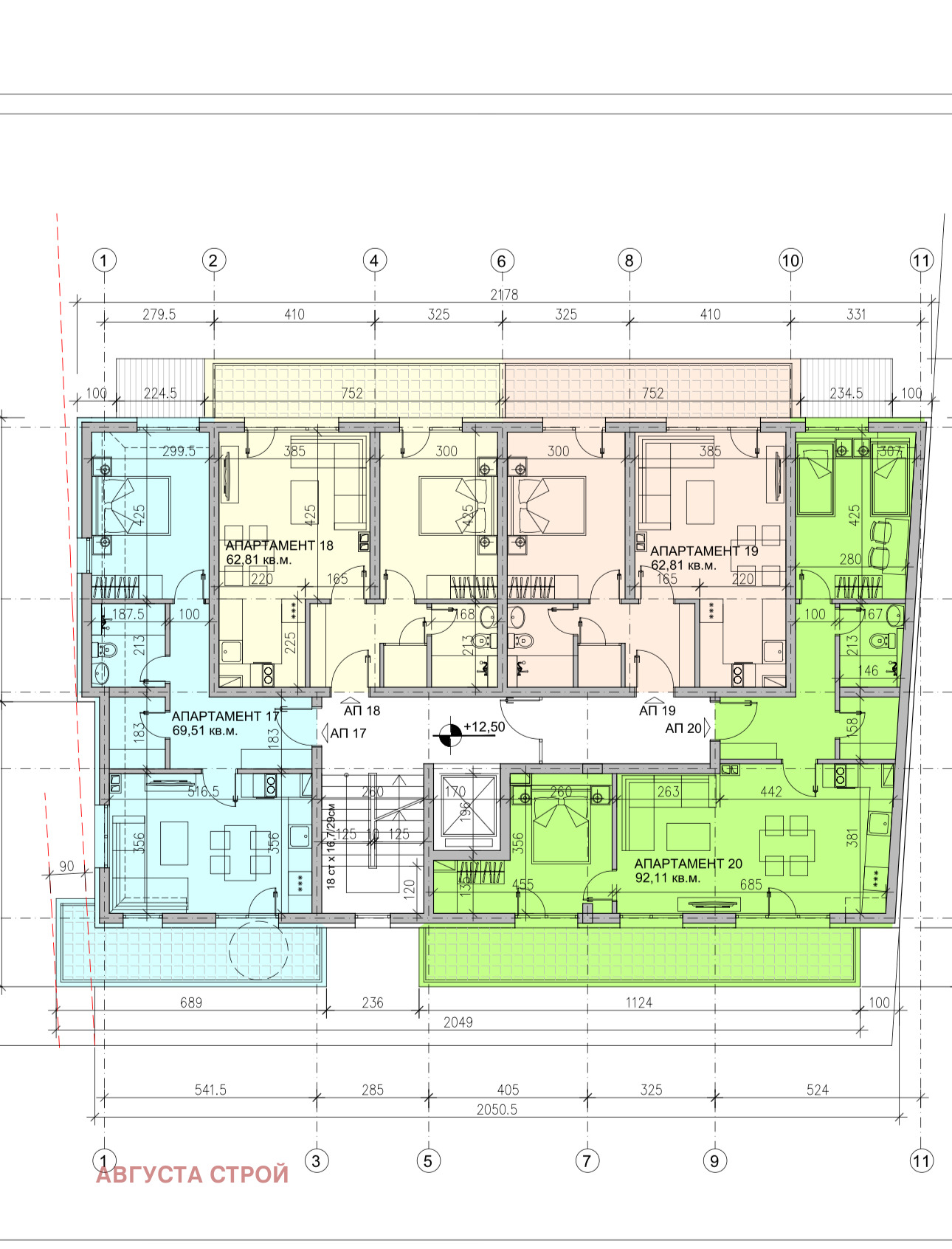
ДИРЕКТНА ПРОДАЖБА ОТ ДОКАЗАН ИНВЕСТИТОР!Строителна фирма с десет построени сгради в София! Банково финансиране за клиенти с кредит! Продава разкошен двустаен апартамент с чиста площ 69,51 кв.м , с общите части - 81,55 кв.м. Апартаментът е с три лица - запад, север, изток. Намира се на 5 етаж от 6 в малка кокетна сграда с контролиран достъп и зелен двор. На схемата - в светло синьо.
Жилищна кооперация е разположена в тихия и зелен квартал Модерно предградие . Новоизградената улица 'Стефан Дуньов' е широка и просторна, атмосферата тук е ваканционна, затова нарекохме новата ни сграда 'Вила Вилекула', както е наричала дома си героинята от детството ни Пипи Дългото чорапче.
Районът е с перфектна инфраструктура, развити транспортни връзки и бърз достъп по бул. 'Сливница' и ул. 'Адам Мицкевич'. Наблизо се намират много от големите супермаркети и магазини, има детски градини, училища. Най-близката станция на метрото е метростанция 'Сливница', започнало е изграждане на метростанция 'Модерно предградие'.
Етап на строителството: Акт 14.
Акт 16 - до края на 2026 г.
Отопление - ток.







