Агенция за недвижими имоти 'Имотен Център' предлагаме на Вашето внимание двустаен апартамент в новострояща се бутикова жилищна сграда с прекрасна гледка към Витоша
в кв. Овча купел 1.
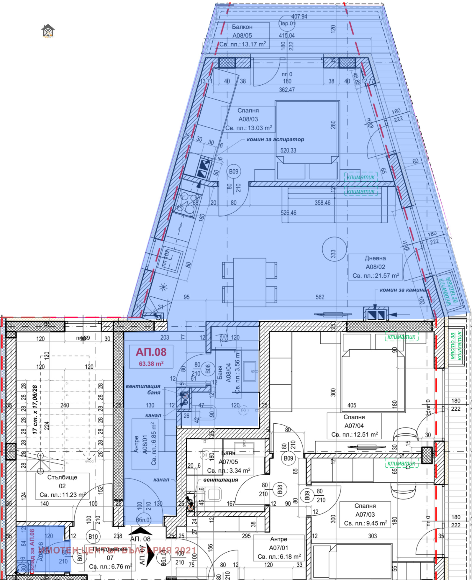
Жилището е разположено на втори жилищен етаж и е с 64 кв. м. чиста жилищна площ.
Разпределение: входно антре, дневна с кухня, спалня, баня с тоалетна, склад, тераса.
Възможност за закупуване на паркомясто!
Функционални удобства в района: Метростанция Овча купел 1,детска градина, училище, магазини, паркове
Отоплението в сградата е предвидено на газ.
Ние може да Ви предложим и осигурим:
Безплатно консултиране с кредитен посредник с 100% успеваемост (най-ниски лихви)
Ремонтни дейности и строителна бригада
Управление на имоти и гарантиран месечен наем
Различни видове апартаменти в района
Можем да организираме оглед на имота в удобно за вас време.
За огледи или повече информация моля да се свържете с нас.
Референтен номер-79171
Отговорен брокер - Дарин Кадифтев
Виж всички обяви в home_center.bazar.bg или тук







