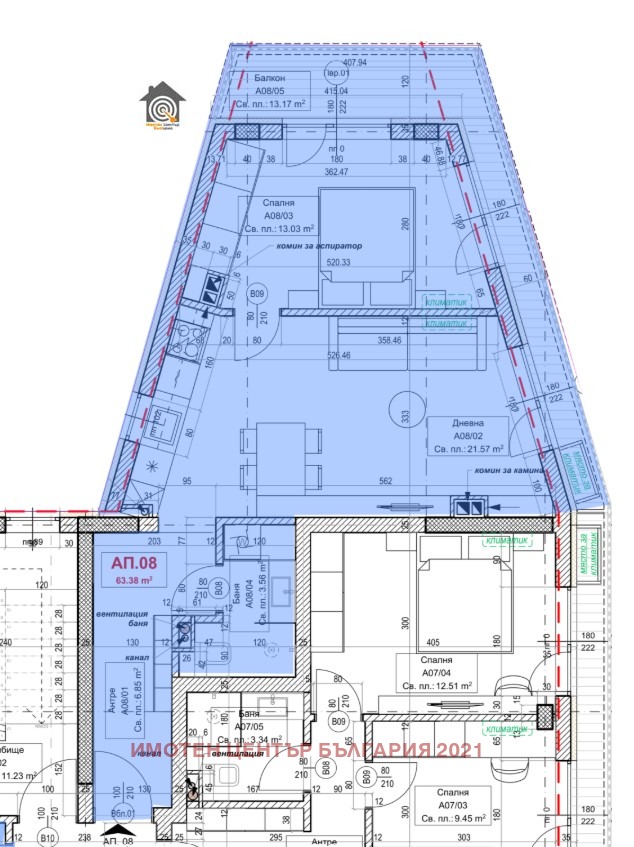
Имота е ситуиран на втори жилищен етаж и е с изложение юг-запад. Разполага с чиста площ от 63.38кв.м. Разпределението е следното: входно антре, дневна, спалня, баня, склад и балкон.
Предвиденото отопление е на ток.
Намира се на страхотна локация на 600 метра от метростанция Овча Купел 1.
Предлагаме паркоместа и други апартаменти в сградата.
За въпроси и огледи позвънете на посочения телефон.
Водещ брокер - Мартин Йовков.
Виж всички обяви в home_center.bazar.bg или тук
        
       
         
         
             
            






