Двустаен апартамент в луксозен новостроящ се комплекс с Акт 14 в кв. Малинова долина ! БЕЗ КОМИСИОННА!
Prestige Building представя двустаен апартамент в уникален новостроящ се жилищен комплекс от затворен тип и комфортен клас в бързо развиващия се кв.Малинова долина, ситуиран на площ от 14 декара, от които 8 декара паркова среда - алеи, зелени площи и декоративна растителност с панорамна гледка към Витоша.
Без комисионна от купувача! Доказан инвеститор без компромис с качеството! Отлично съотношение цена качество.
Цена 198 138.00 евро с ДДС
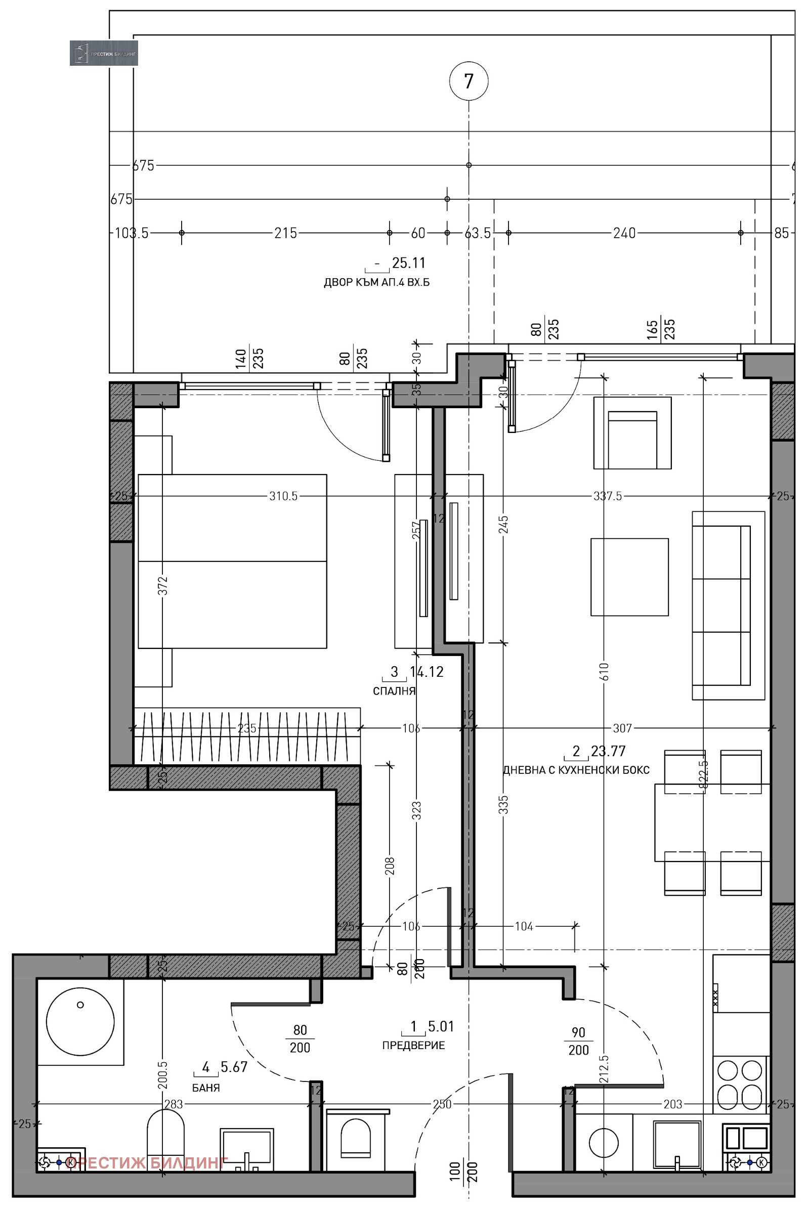
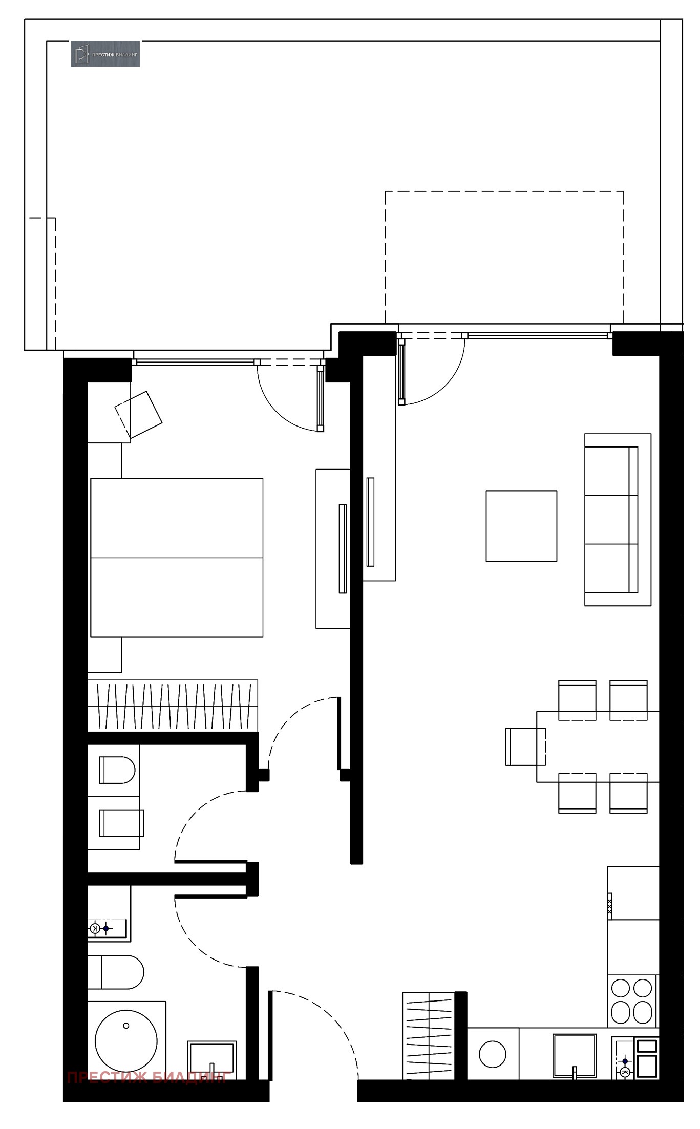
Апартаментът е с обща площ 66,70 кв.м, от които застроена площ 56,25 кв.м. + двор 25,11 кв.м. Прилагаме схема на разпределениеза Ваше удобство Разположен е на първи жилищен етаж от четириетажна жилищна сграда - Сграда 2.
Функционално разпределение: антре, дневна с кухня с трапезария, спалня, баня с тоалетна, двор.
Изложение: запад
Срокове на строителство:
Акт 15 средата на 2026 г.
Акт 16 до края на 2026г.
Технически характеристики:
- функционално разпределение и оптимално използване на вътрешното пространство;
- Модерна визия, луксозно строителство с висококачествени материали и иновативни енергоспестяващи технологии.
- Водопроводна инсталация от полипропиленови тръби до тапа , по БДС.
- Отопление ток
- Стени гипсова шпакловка, подове циментова замазка.
- Подови настилки фоайе, коридори, стълбище - гранитогрес по дизайнерски проект, напълно завършени. Предпазни стълбищни парапети - стъклени/ковано желязо, по дизайнерски проект. Стени - декоративна мазилка.
- Дограма Schüco; входни врати Solid;
- Асансьори Schindler
- Фасада комбинация от контактна фасада и Meldorfer, 10 см топлоизолация от каменна вата;
Комплексът се състои от 3 нискоетажни сгради, охраняемо дворно място с контрол на достъпа чрез камери за наблюдение, подземни паркинги за автомобили, паркинг за велосипеди и станции за зареждане на електрически скутери, детски и спортни площадки, фитнес на открито, зона за барбекю, кафене.
Местоположение: комуникативно, в близост до Бизнес парк София , Ринг мол , IKEA , Парадайз Център, супермаркети Кауфланд , Фантастико , Била , Национална спортна академия, Зимен дворец на спорта, тенис кортове, детски ясли и градини, училища и висше учебни заведения, ресторанти и разнообразни търговски услуги.
В комплексът се предлагат двустайни, тристайни, четиристайни жилища, мезонети и подземни паркоместа.
За огледи и информация: 0889909079,0883310777







