Prestige Building представя двустаен апартамент с двор в уникален новостроящ се жилищен комплекс от затворен тип и комфортен клас в бързо развиващия се кв.Малинова долина, ситуиран на площ от 14 декара, от които 8 декара паркова среда - алеи, зелени площи и декоративна растителност с панорамна гледка към Витоша.
Без комисионна от купувача! Доказан инвеститор без компромис с качеството! Отлично съотношение цена качество.
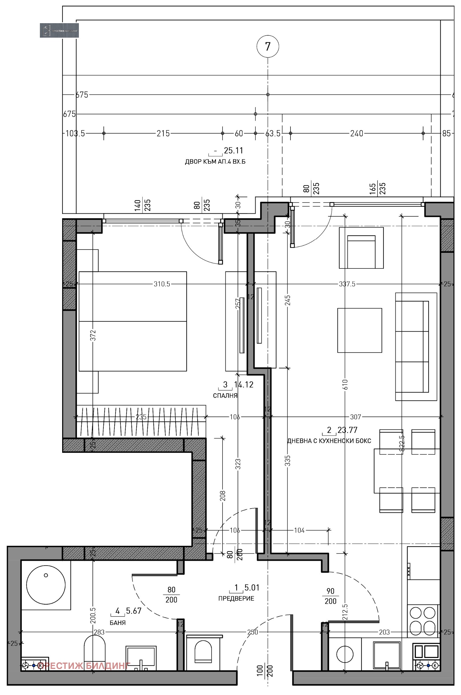
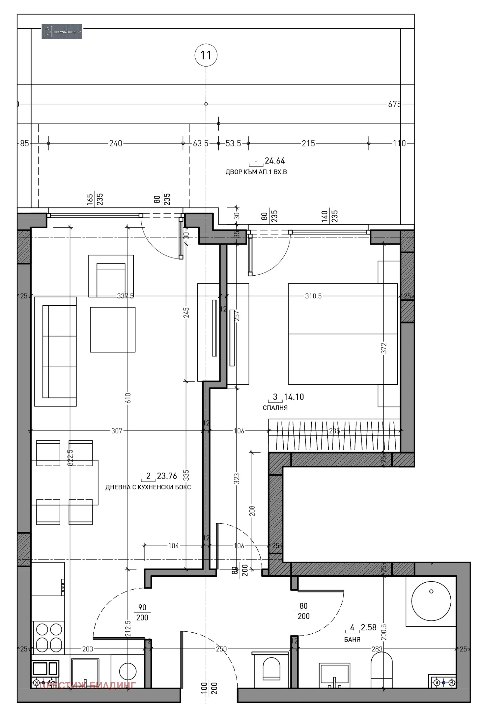
Апартаментът Б 04
66.70 m2 Площ с общи части
25.11 m2 Двор
56.25 m2 Чиста площ
Прилагаме схема на разпределение за Ваше удобство. Разположен е на четвърти етаж от четириетажна жилищна сграда.
Функционално разпределение: предверие, дневна, кухня и трапезария, спалня, баня с тоалетна и тераса.
Изложение: запад
Срокове на строителство:
Акт 15 до края на 2025 г.
Акт 16 до края на 2026 г.
Технически характеристики:
- функционално разпределение и оптимално използване на вътрешното пространство;
- Модерна визия, луксозно строителство с висококачествени материали и иновативни енергоспестяващи технологии.
- Водопроводна инсталация от полипропиленови тръби до тапа , по БДС.
- Отопление ток
- Стени гипсова шпакловка, подове циментова замазка.
- Подови настилки фоайе, коридори, стълбище - гранитогрес по дизайнерски проект, напълно завършени. Предпазни стълбищни парапети - стъклени/ковано желязо, по дизайнерски проект. Стени - декоративна мазилка.
- Дограма Schüco; входни врати Solid;
- Асансьори Schindler
- Фасада комбинация от контактна фасада и Meldorfer, 10 см топлоизолация от каменна вата;
Комплексът се състои от 3 нискоетажни сгради, охраняемо дворно място с контрол на достъпа чрез камери за наблюдение, подземни паркинги за автомобили, паркинг за велосипеди и станции за зареждане на електрически скутери, детски и спортни площадки, фитнес на открито, зона за барбекю, кафене.
Местоположение: комуникативно, в близост до Бизнес парк София , Ринг мол , IKEA , Парадайз Център, супермаркети Кауфланд , Фантастико , Била , Национална спортна академия, Зимен дворец на спорта, тенис кортове, детски ясли и градини, училища и висше учебни заведения, ресторанти и разнообразни търговски услуги.
В комплексът се предлагат двустайни, тристайни, четиристайни жилища, мезонети и подземни паркоместа.
0889909079, 0883310777
Виж всички обяви в prestigebuilding.bazar.bg или тук
        
       
         
         
         
         
         
         
         
             
             
             
             
             
             
            






