Translations in other languages:
All real estate ads published on imot.bg have been translated into English and published on the partner site
Получихте нова обява по филтър





Промяна на цена на наблюдавана обява


стара цена
нова цена
imot.bg – обяви за продажби и наеми на имоти
Сайт за имоти №1
Translations in other languages:
All real estate ads published on imot.bg have been translated into English and published on the partner site
ДОБАВИ ОБЯВА Редакция на обява
Начало Публикуване Търсене Нови сгради Агенции Новини Кредити + Още... Моят имот
Продава 2-СТАЕН
град София, Люлин 5
бул. Добринова скала
131 750 €
257 680.60 лв.

(1 830 €, 3 579.17 лв./m2)
Цената е с включено ДДС
Коригирана в 8:40 на 24 октомври, 2025 год.
Обявата е посетена 16598 пъти.
Площ:
72 m2
Етаж:
9-ти от 10
ТEЦ:
ДА
Строителство:
Тухла, Ще бъде въведен в експлоатация 2026 г.

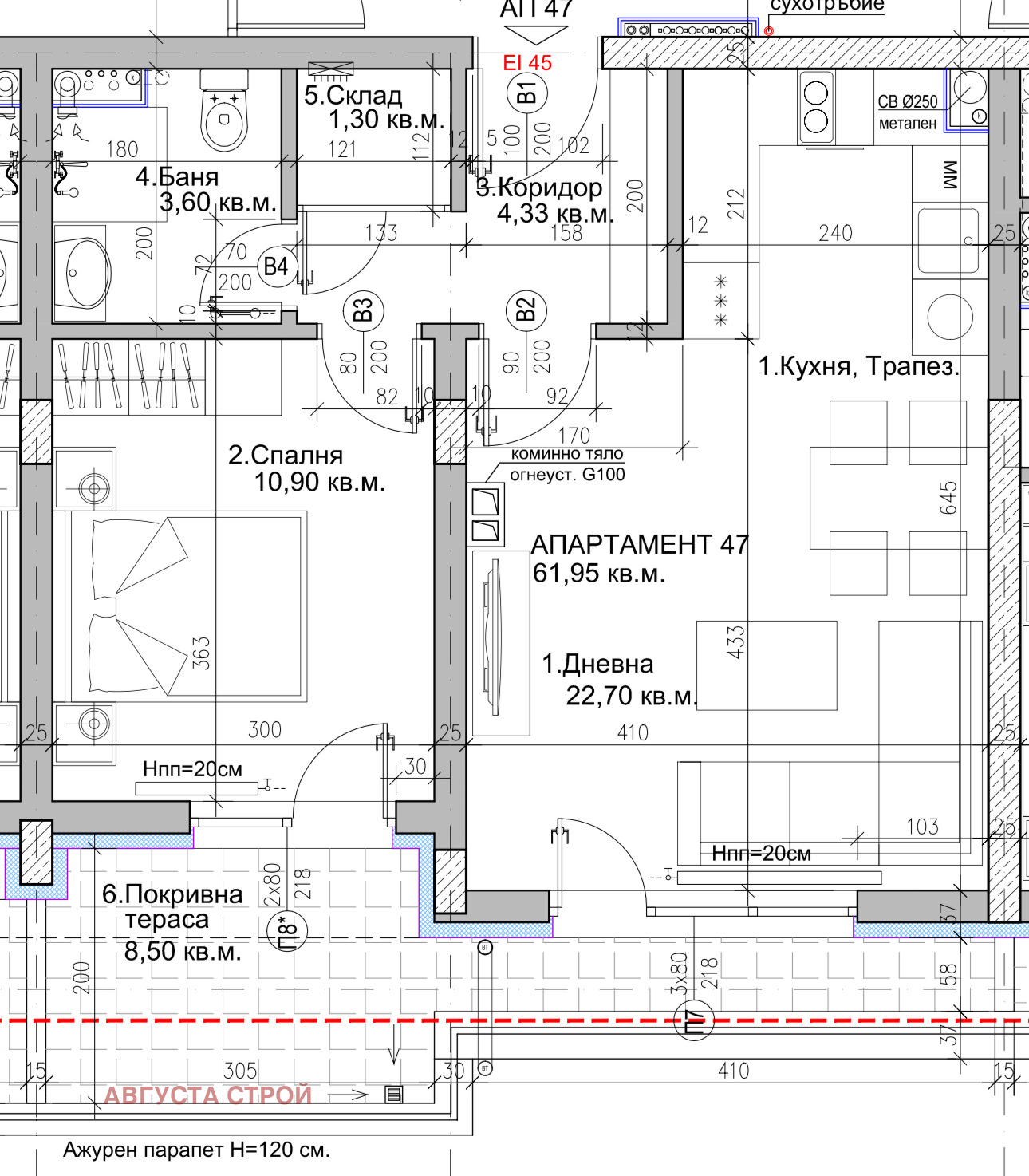
Описание на имота:


ДИРЕКТНО ОТ ИНВЕСТИТОР! Пред Акт 15! ЧЛ. 181 ЗА ЗАВЪРШЕН ГРУБ СТРОЕЖ! Продава двустаен (апартамент 47), вътрешен, изцяло южен. Чиста жилищна площ 62 кв.м, с общите части 71,22 кв.м. Състои се от коридор, баня с тоалетна, дневна с кухня, спалня, общ балкон към дневната и спалнята. Апартамент 47 се намира на девети етаж, като от прозорците му се разкриват гледки към Витоша. Акт 16- март 2026 г. Разсрочена схема на плащане. Сградата се строи от доказан инвеститор с осем построени и въведени в експлоатация сгради в София. Намира се на бул. Добринова скала срещу блок 523. Перфектен достъп по основни булеварди: бул. Царица Йоана, бул. Д-р Петър Дертлиев, бул. Сливница и Околовръстното. Наблизо са много от големите вериги, детски градини, училища, фитнес зали. Колелото на автобус 310 и на още няколко автобусни линии е на 2 минути от блока. Предстои изграждане на Метростанция Добринова скала, която е на пешеходно разстояние от сградата. тел.: 0877501722
Виж всички обяви в avgusta_stroy.bazar.bg или тук
Особености
Тухла
За контакт:
0877501722
Строителна фирма:
АВГУСТА СТРОЙ
0877501722
В imot.bg от 2024 г.
Адрес:
област София, гр. София, София ул. Панагюрище 40
http://[email protected]
ИЗПРАТИ ЗАПИТВАНЕ
ИЗПРАТИ ЗАПИТВАНЕТО

Продава 2-СТАЕН
град София, Люлин 5
бул. Добринова скала
Обява: 1b171315913049936

131 750 €
257 680.60 лв.
(1 830 €, 3 579.17 лв./m2)

Цената е с включено ДДС
ЗАПАЗИ ОБЯВАТА

Местоположение: град София, Люлин 5, бул. Добринова скала

Виж още имоти от София или още Двустайни Апартаменти в София
Допълнителни данни за имотите в района и сравнение с други райони: Търсене в АРХИВ 2013 - 2025 г.











Добави/редактирай
вид имот и район
*Средните цени са определени чрез медиана стойност.
КОНТАКТИ | SMS КОДОВЕ | СТАТИСТИКА | ПОМОЩ | ОБЩИ УСЛОВИЯ | РЕКЛАМА | ТОП ОФЕРТА | Въпроси и предложения към imot.bg
Резон Медия | Имоти | Автомобили | Работа | Новини | Обяви | Преводи и легализация 2002-2025 ® Copyright imot.bg
© imot.bg ползва и препоръчва хостинг услугите на Bulinfo.net
Следвайте ни в: