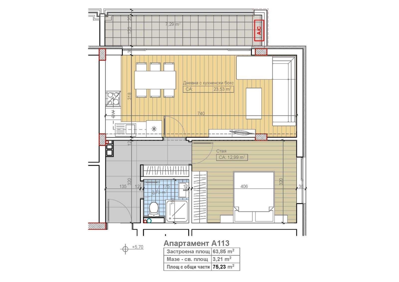
Двустаен апартамент А113 изложение: дневна - частично юг, основно запад, стая - частично запад, основно север, на отлична локация в м.Гърдова глава (част от кв.Бояна) на ул.'Преки път' 84 в луксозна жилищна сграда с изцяло окачена вентилируема фасада и дограма от композитен материал GENEO на REHAU с троен стъклопакет, четворна хидроизолация на покрив и покривни тераси. Етап: довършителни работи
Крайната цена е с включен ДДС.
Има възможност за покупка на паркомясто.
Виж всички обяви в msviat.bazar.bg или тук







