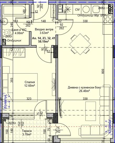
ДВУСТАЕН апартамент в Стара Загора. Сградата е ново строителство. Имотът е с площ от 82 кв. метра. ДВУСТАЙНИЯТ апартамент се състои от входно антре, светла и просторна всекидневна с кухненски бокс, спалня,балкон, баня с тоалетна. Издава се в следния вид: стени и тавани шпакловка, под замазка, ВиК до тапа, ел. инсталация до фасунга и ключ, ПВЦ дограма. Има възможност за закупуване на гараж.
ДВУСТАЕН апартамент в нова кооперация с асансьор.
ДВУСТАЙНИЯТ апартамент се намира в град Стара Загора до борова гора.
Обади се СЕГА и цитирай този код:480947







