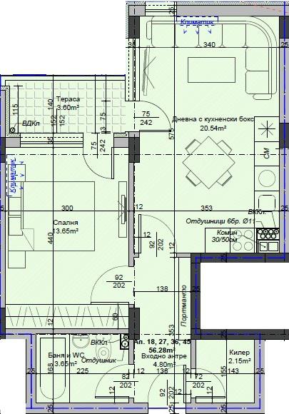
АДРЕС предлага за продажба апартаменти, ново строителство, в Стара Загора. Апартаменти с квадратура от 73 до 160 кв.м, с просторни дневни 25 -50кв.м, спални 12-15кв.м, луксозни общи части! Въможност за закупуване на гараж.
Пет етажна монолитна сграда с луксозни общи части и асансьор.
Сградата е позиционирана на тихо място в близост парк. В близост има магазини, заведения, спирки на градски транспорт, езеро 'Бедечка' и МОЛ Галерия.
Обади се СЕГА и цитирай този код:480737
Виж всички обяви в address_sz.bazar.bg или тук
        
       
         
         
         
             
             
            






