Референтен номер: SOF-135088
Представяме едностаен апартамент в нов жилищен комплекс, разположен в столичния квартал 'Малинова долина' един от най-бързо развиващите се райони в София. Комплексът се състои от две самостоятелни сгради с общо три секции и е проектиран с внимание към детайла, така че да съчетае съвременна архитектура, функционални жилища и високо ниво на комфорт.
Локацията осигурява едновременно тишина и спокойствие, както и лесен достъп до ключови точки в града. Близостта до бул. Симеоновско шосе и Околовръстен път позволява бързо придвижване към центъра на София, Бизнес Парк София, основни търговски и административни зони, както и към изходите на града. В района се намират множество супермаркети, магазини, училища, детски градини и заведения за хранене, които напълно удовлетворяват нуждите на съвременния градски живот.
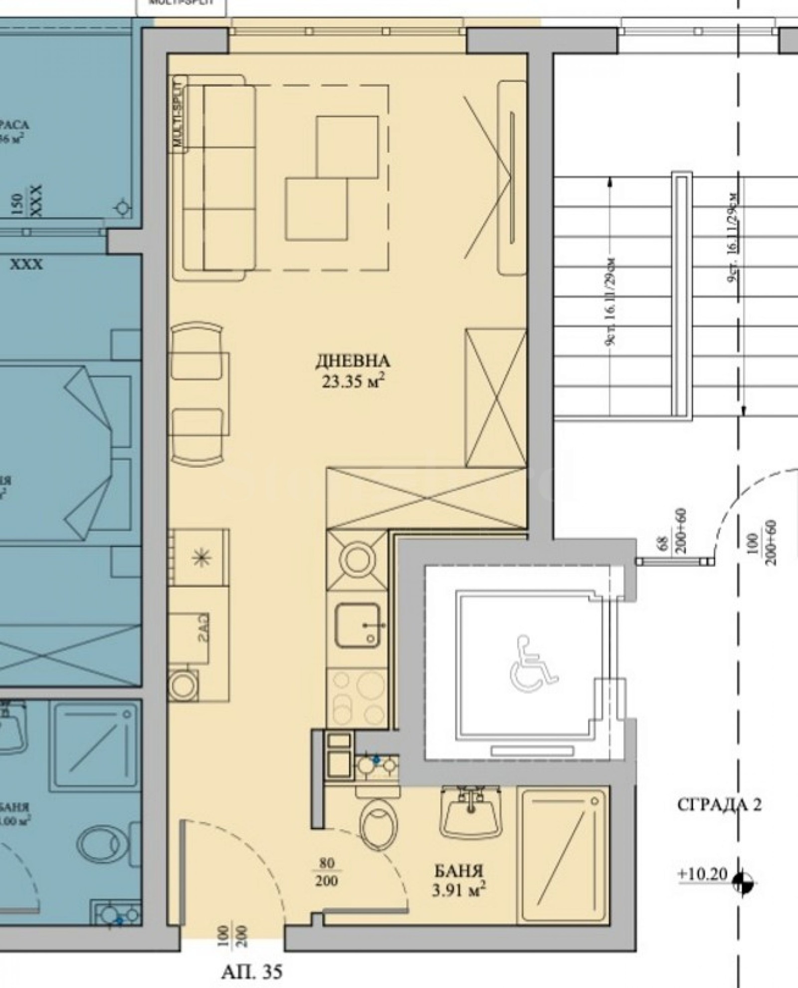
Едностайният апартамент се намира на 4-ти етаж в 4-етажна сграда. Жилището е с обща площ 39.34 кв. м (застроена площ - 32.16 кв. м и общи части - 7.18 кв. м).
Комплексът предлага разнообразие от апартаменти от компактни и функционални жилища до просторни семейни домове с добре организирани вътрешни разпределения. Особено предимство имат апартаментите на приземно ниво, които разполагат със собствени дворни пространства удобство, което рядко се среща в съвременната градска среда. Те предоставят възможност за обособена градина, детски кът или зона за отдих.
Подземният паркинг с вътрешни паркоместа и автоматични гаражни врати тип летящо крило осигурява безпроблемно и сигурно паркиране. Пространствата са завършени със шлайфан бетон, модерна вентилационна система, електроинсталация и маркировка, изпълнени по проект.
Живущите в комплекса ще се радват на спокойствие, сигурност и удобство, благодарение на контролиран достъп чрез автоматична бариера, домофонна система и видеонаблюдение. Този подход съчетава необходимата защита с усещането за лична свобода и ...
За повече информация свържете се с нас и цитирайте референтния номер на имота. Моля, кажете, че сте видeли обявата в този сайт.
Референтен номер: SOF-135088
Тел: +359 889 007 010
Моб: +359 877 777 888 (WhatsApp, Viber, SMS)
Отговорен брокер:Стоунхард ПРЕМИЪР







