Референтен номер: SOF-136419
Представяме едностаен апартамент в качествена нова сграда в кв. 'Левски', с удобна локация с бърз достъп до 'Ботевградско шосе', което свързва района с бул. 'Мадрид' и осигурява удобна връзка с централната част на София. Разработена е с концепция с приоритет върху максималната енергийна ефективност и ниските разходи за поддръжка, благодарение на качествените материали и изпълнението.
В строеж. Планиран Акт 16 - март 2027 г.
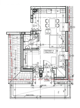
Имотът е с обща площ 84,34 кв.м, разположен е на етаж 6-ти и се състои от дневна с кухненска зона, баня/тоалетна и голяма тераса. Към имота има мазе с площ 2.25 кв.м. Жилището се издава по БДС, с възможност новия собственик да оформи интериора по свой стил.
Жилищната сграда е проектирана на 6 етажа + сутерен, с общо 19 апартамента. Общите части ще бъдат изпълнени в луксозен стил, с внимание към детайла и високи стандарти за качество.
Налични за продажба са:
двустайни апартаменти;
един тристаен апартамент;
две студиа на последен етаж.
За максимално удобство са предвидени:
14 подземни паркоместа;
5 открити паркоместа.
*Има опция за закупуването на подземни паркоместа на цени от 27 000 евро (52,806.60 лв.) без ДДС.
Конструкция, материали и енергийнa ефективност:
Фасада с топлоизолация 10 см EPS Baumit;
Покрив с 14 см минерална вата и двойна хидроизолация, завършен с битумни керемиди;
Външни и преградни стени от висококачествени тухли Wienerberger;
Фасадни стени с комбинация от полимерна мазилка и декоративни тухли Caparol;
Петкамерна дограма Veka с троен стъклопакет с К-стъкло отлична шумо- и топлоизолация;
Блиндирани входни врати;
XPS под подовата замазка във всички помещения за по-добра шумо- и топлоизолация;
Вградени: ...
Цената на имота е 165 204 евро / 323 110.94 лв. без ДДС или 198 244 евро / 387 733.13 лв. с ДДС. Данъчен кредит може да се ползва при определени условия.
За повече информация свържете се с нас и цитирайте референтния номер на имота. Моля, кажете, че сте видeли обявата в този сайт.
Референтен номер: SOF-136419
Тел: +359 889 007 010
Моб: +359 877 777 888 (WhatsApp, Viber, SMS)
Отговорен брокер:Стоунхард ПРЕМИЪР







