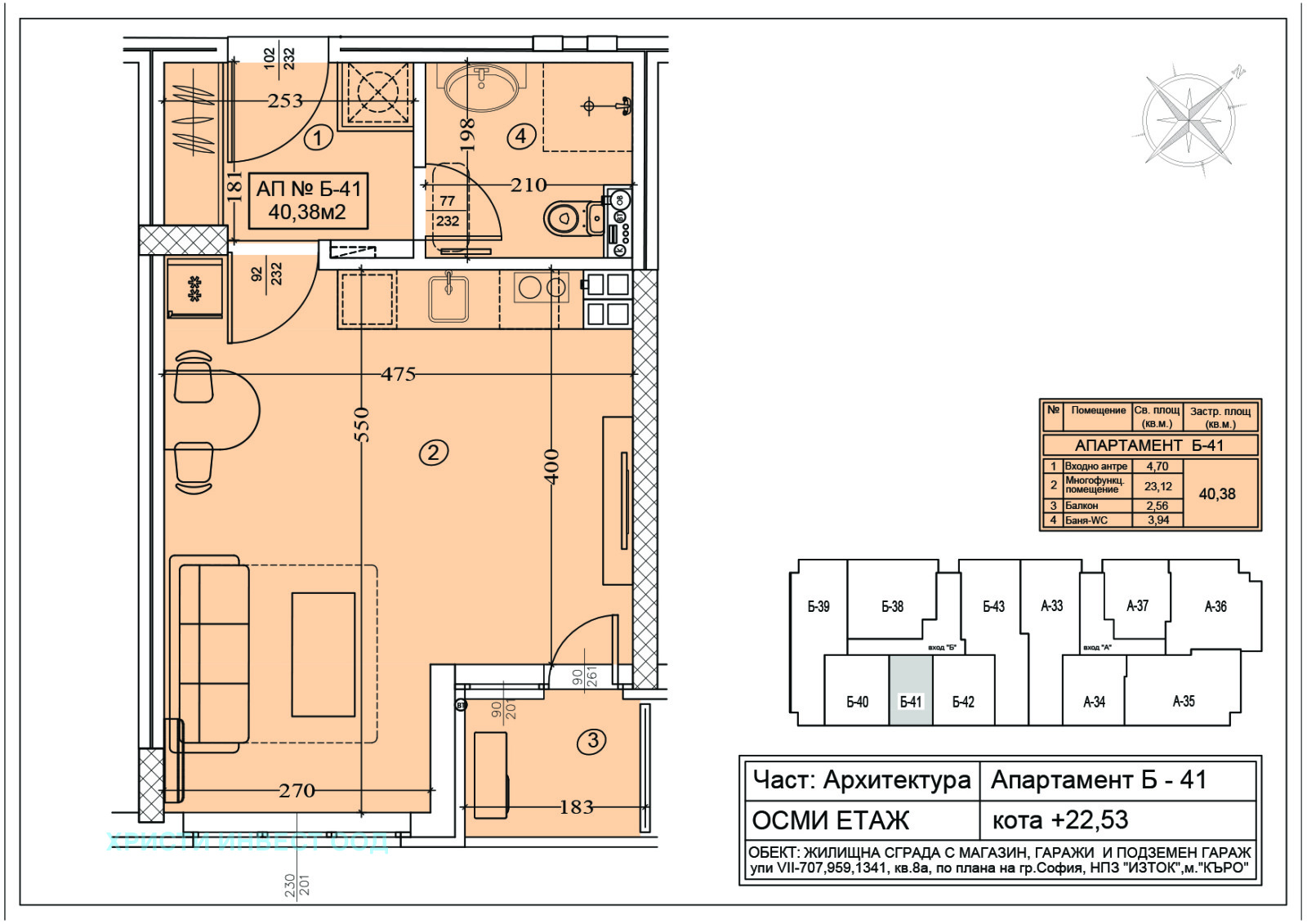
Продава 1-стаен тухлен апартамент в новострояща се луксозна сграда. Разпределение вх.антре,дневна с обособено място за сън, тоалетна и баня, балкон сзаст.пл.40.38кв.м.и с общ.ч.47.99кв.ч.Допълнително има възможност да се закупи гараж или паркомясто. Апартамента се предава на шпакловка и замазка.
Офертата се предлага само за частни лица.







