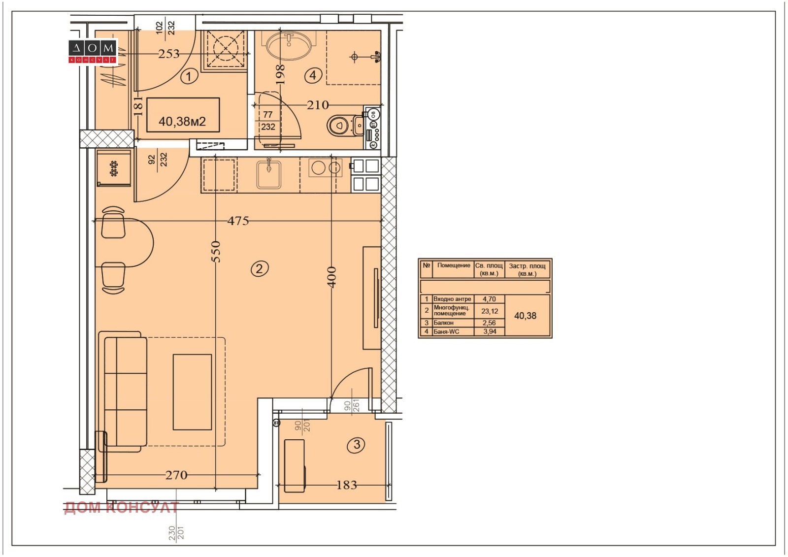
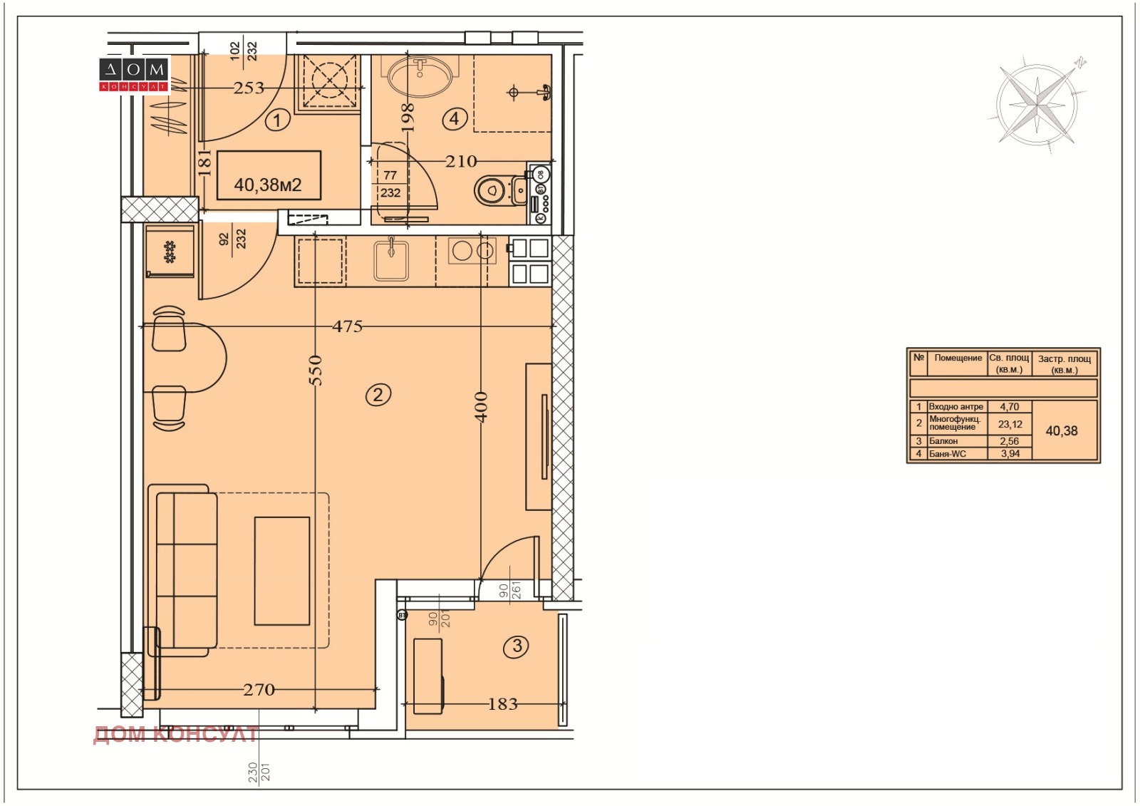
Апартамент в нова жилищна сграда, която се намира в близост до The Mall, MEGAPARK, Sofia Tech Park, в близост до новострояща се метростанция Окръжна болница/Цариградско шосе /2027г./Сградата се отличава с висококачествено изпълнение и модерна визия. Районът е добре развит и с отлична инфраструктура, много комуникативно, но тихо място в близост до спирки на градски транспорт и бъдеща метростанция на Цариградско шосе, което гарантира бърз достъп до централната градска част и всички части на града. Разпределение: антре с място за гардероб, дневна с кухненски бокс, баня с тоалетна и балкон; Застроена площ - 40,4кв.м.Изложение: ЮгoИзток. --- СРОК ЗА АКТ 16 Юни 2026г. ---Апартамента се продава на гипсова мазилка; под-шумоизолационен пакет и циментова замазка; Шумоизолация между съседни апартаменти, под и санитарни помещения;Отопление - ТЕЦ;PVC шесткамерен профил със строителна ширина min 80 мм, троен стъклопакет; външно и вътрешно стъкло 'К' - нискоемисийно; средно стъкло - бяло; стъклата са по европейски стандарт EN, изпълнена разводка за климатична инсталация; БЕЗ климатици, метална входна врата; височина min 210 см; ширина 100 см; интернет - до апартамента с оптичен кабел; до всяка стая в апартамента с FTP кабел; Сграда: Смесена вентилируема фасада от HPL и минерална мазилка; Топлоизолационен слой на сградата - 14см.; Зидария - едроразмерни тухлени блокове на Wienerberger;Общи части и фоайе, оформени по индивидуален дизайн - под - гранит, парапети - алуминий, хидравличен асансьор;Система за видеонаблюдение на сградата - изградена с DVR устройство и камери с възможност за нощно виждане, монтирани на всички подходи към сградата; Сградата предлага жилища с висококачествено изпълнение, които имат необходимите дадености за запазване стойността на инвестицията във времето.Свободни паркоместа и подземни гаражи.Предлагат се и други двустайни и тристайни апартаменти. Офертата се предлага само на ЧАСТНИ ЛИЦА.







