📌 Референтен номер: 2098393.
❗ Революшън Естейт Ви представя едностаен апартамент в комплекс от две сгради С АКТ 14 в ж.к. Студентски град.❗
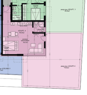
🔷 Квадратура: 57.78 кв.м.
🔷 Етаж: 0 от 6
🔷 Изложение: Изток/Юг
🔷 Разпределение: входно антре, всекидневна с кухненски бокс и трапезария, спална ниша, баня с тоалетна и двор - 70 кв.м.
🔷 Отопление: електричество.
🔷 Сградите разполагат с подземни гаражи и са проектирани с два общи, свързващи етажа.
🔷 Очаквано завършване: 2027г.
В близост до имота ще намерите:
- Спортна зала 'Христо Ботев'
- ДГ 79 'Слънчице';
- Американски университет в България;
- Медицински център 'ФиХелт';
- Супермаркет 'Фантастико';
- Автобусни спирки.
📞 Информация за горепосочения имот, може да получите чрез формата на запитване или чрез директна връзка с нас на посочения телефон.







