ДИРЕКТНО ОТ ИНВЕСТИТОР! 'Ви Ем Инвест' ви представя едностаен апартамент в Жилищните сгради 'Мизия, Тракия и Македония' . Проект, гарантиращ сигурност и комфорт в затворен тип комплекс, който се намира в кв. Малинова долина, в непосредствена близост до хипермаркети, молове, детска градина и Околовръстен път. Кварталът е разположен в южната част на София, далеч от градския шум и в подножието на планината, а същевременно с бърз и лесен достъп до центъра на града. Сградите 'Мизия , Тракия и Македония' са с Акт 14 и Удостоверение по чл. 181.
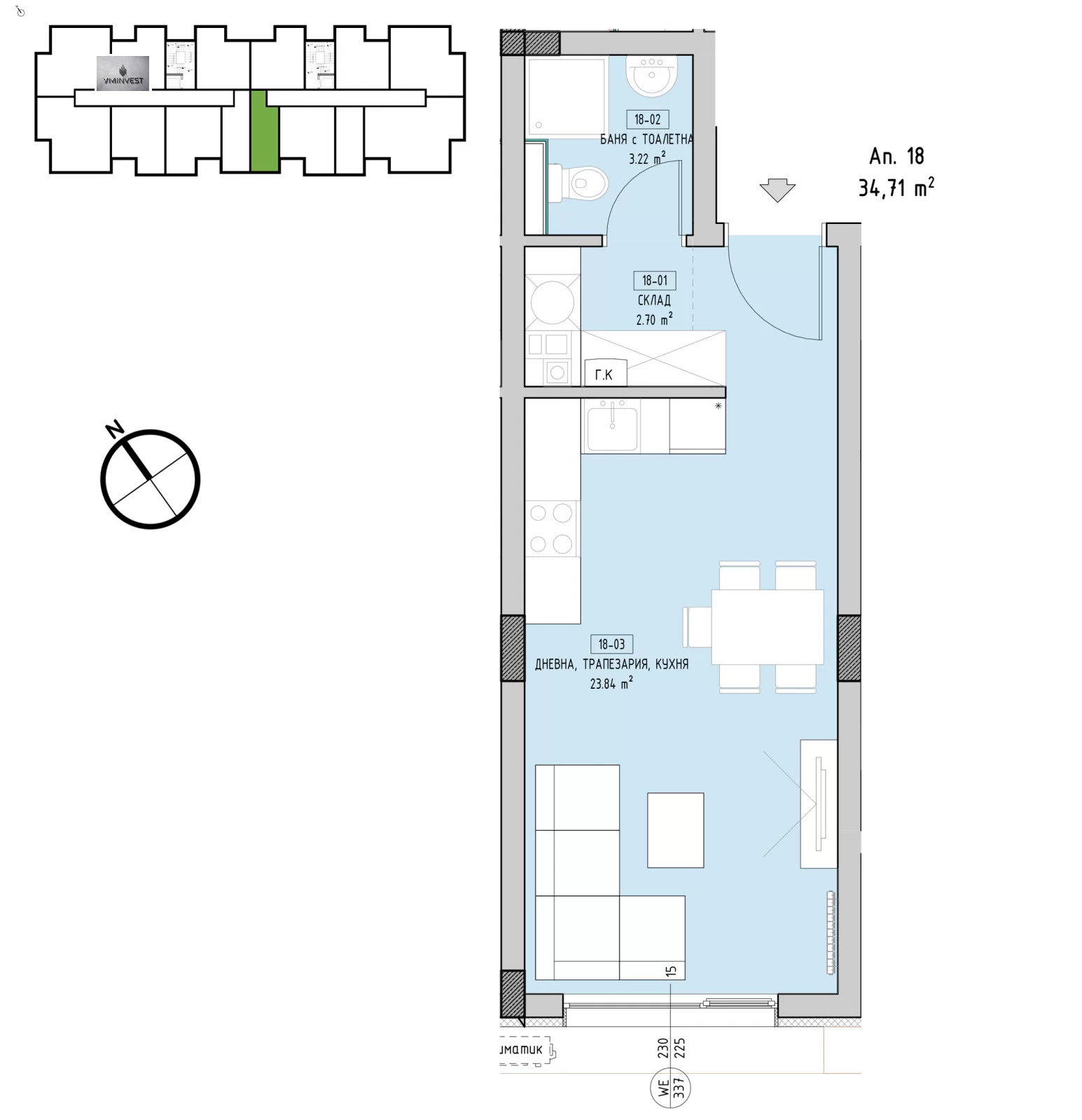
Апартаментът /Ап.18, Вх.А, сграда 'Мизия'/ е с площ от 41,12 кв.м. и е на трети етаж.
Разпределение: дневна с кухненски бокс /23,84 кв.м./, склад /2,70 кв.м./, баня тоалетна /3,22 кв.м./.
Има възможност за закупуване на паркоместа /от 22000 евро/, както и гаражи /от 26000 евро/.
Сградата е с богато озеленено пространство, с алеи за разходка и обезопасени места за детски игри.
Комплексът разполага с общо 138 апартамента, 159 подземни гаража и паркоместа и 12 надземни паркоместа. Всяко жилище е проектирано с внимание към детайла и предлага просторни, светли помещения с функционални и отворени планове, които създават усещане за простор и комфорт и позволяват обединяване на съседни имоти.
Сградите са с ниско енергийно потребление и минимален отпечатък върху околната среда. Предвидено е изграждането на детска площадка, споделени пространства за отдих и развлечения за да спомогнем за създаването на една сплотена общност от съседи и приятели.
Компанията ни може да ви съдейства за кредитно посредничество, ако сте предвидили плащания чрез ипотечен и/или потребителски кредит.
Като наши клиенти имате възможността да се възползвате от безплатно кредитно консултиране. Ще получите най-добрите оферти, съобразени с вашия личен профил и предпочитания, при преференциални условия.
Научете повече на: www.vminvest.bg







