? Реф. 37040
? Луксозено обзаведен едностаен апартамент в кв. Христо Смирненски, Пловдив! ?
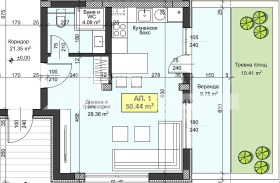
Агенция Авеню Имоти има удоволствието да Ви представи чисто нов, двустаен апартамент в един от най-предпочитаните квартали на гр. Пловдив кв. Христо Смирненски.
? Основни характеристики:
Просторна дневна с кухненски кът, спалня, баня с тоалетна и тераса
Състояние: готов за нанасяне до ключ ?
? Комплексът предлага:
Затворен тип с повишена сигурност ?
Детска площадка и озеленени общи части ??
Паркинг ?, видеонаблюдение ? и асансьор ?
Тих и спокоен район с добра инфраструктура ??
? Предимства на имота:
Отлична локация близо до магазини, училища, детски градини и транспортни връзки ???
Идеален както за лично ползване, така и за инвестиция ?
? За повече информация и огледи:
Тел. 0895 63 78 78







