Translations in other languages:
All real estate ads published on imot.bg have been translated into English and published on the partner site
Получихте нова обява по филтър





Промяна на цена на наблюдавана обява


стара цена
нова цена
imot.bg – обяви за продажби и наеми на имоти
Сайт за имоти №1
Translations in other languages:
All real estate ads published on imot.bg have been translated into English and published on the partner site
ДОБАВИ ОБЯВА Редакция на обява
Начало Публикуване Търсене Нови сгради Агенции Новини Кредити Моят имот
Продава 1-СТАЕН
град Пловдив, Христо Смирненски
маг. 'Лекси'
130 120 €
254 492.60 лв.

(1 859 €, 3 635.89 лв./m2)
Цената е с включено ДДС
История на цената
Публикувана в 10:32 на 8 декември, 2025 год.
Обявата е посетена 57 пъти.
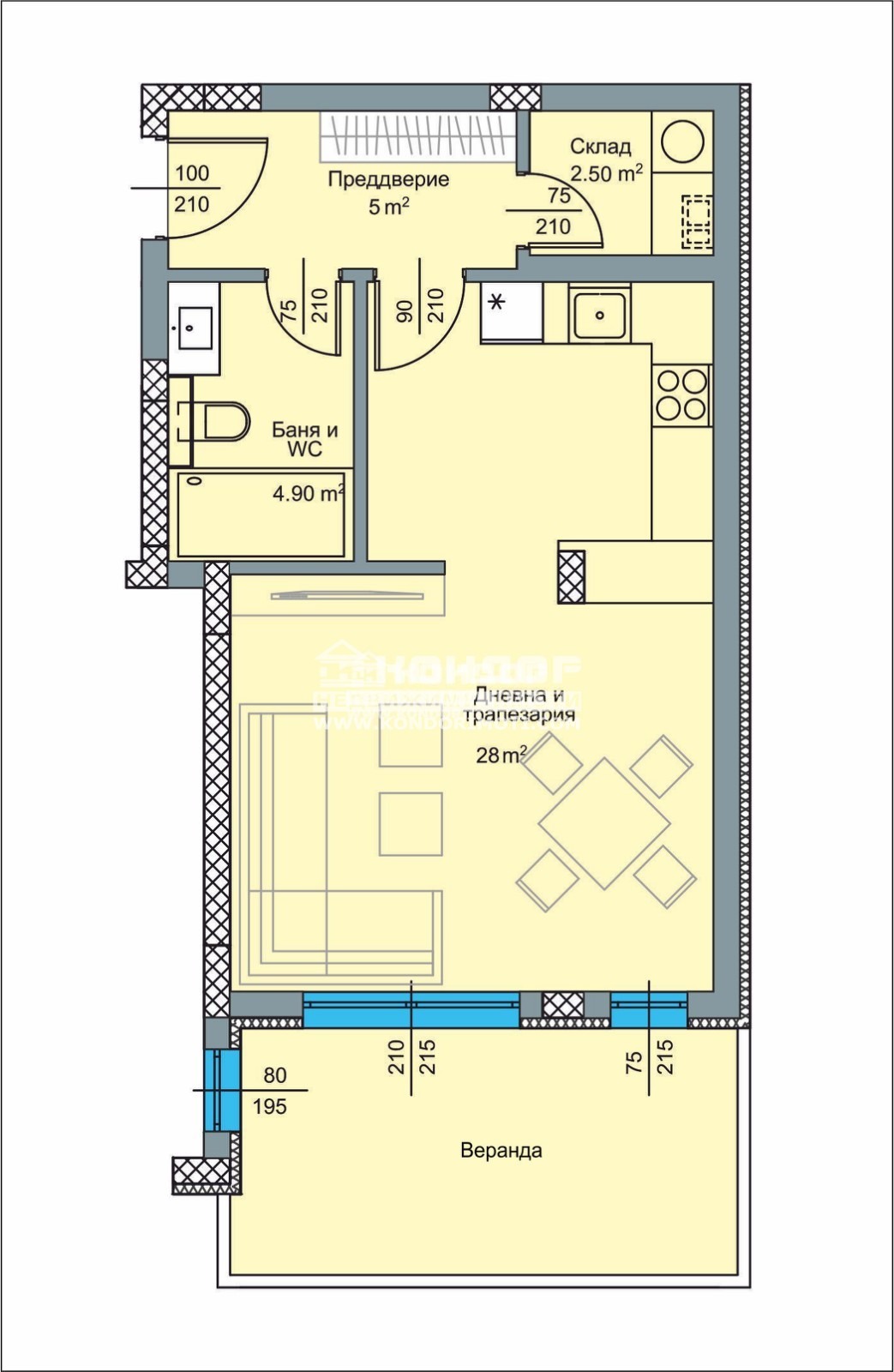
Площ:
70 m2
Строителство:
Тухла, Въведен в експлоатация

Описание на имота:


Оферта 55363 - ГОТОВА ЛУКСОЗНА СГРАДА С АКТ 16!!! Предлагаме Ви възможността да си закупите едностайно НАПЪЛНО ЗАВЪРШЕНО И ОБЗАВЕДЕНО жилище в нов модерен комплекс, разположен в един от най-предпочитаните напоследък райони за живеене - парк Отдих и Култура, проектиран с концепцията да създаде максимален комфорт на живеене, съчетаващ високо качество, страхотна визия, стил и архитектура, голям вътрешен озеленен двор с детски площадки и места за отдих и релакс, както и много допълнителни екстри!!!Функционален, вътрешен 1-стаен апартамент, състоящ се от просторна дневна 28кв.м. с кухненски бокс и трапезария, баня с тоалетна, входно антре и една веранда. Изпълнението е осъществено с висококачествени материали и съвременни технологии по европейски стандарт, шесткамерна PVC дограма, масивна блиндирана входна врата с 4-странно заключване, интериорни МДФ-врати, прекарани климатични инсталации , сензорно осветление, хидравлични асансьори с огледална кабина. Сградата се намира в един от най-зелените райони с перфектна локация, с обширна паркова среда, Мол Пловдив и обновения спортен комплекс на Гребна База. Имота е особено подходящ, както за живеене, така и за отдаване под наем. Възможност за закупуване на ПОДЗЕМНИ ГАРАЖИ !!! Възможност за закупуване чрез банков кредит с изключително добри условия за клиенти на Агенцията.
Особености
Тухла
Обзаведен
За контакт:
0897777032

Този имот се предлага само на частни лица
Брокер:
Кондор Имоти
0897777032
Още оферти от брокера: Продава | Дава под наем | Купува | Наема
Агенция:
КОНДОР - НЕДВИЖИМИ ИМОТИ
0897 777 032 , 0893 554 200;
КОНДОР - НЕДВИЖИМИ ИМОТИ logo
Медал за прослужено време
В imot.bg от 2004 г.
kondor.imot.bg
Адрес:
област Пловдив, гр. Пловдив, ул.Петко Д.Петков 23,ет.4 /до ТЦ Гранд/
http://www.kondorimoti.com
ИЗПРАТИ ЗАПИТВАНЕ
ИЗПРАТИ ЗАПИТВАНЕТО

Продава 1-СТАЕН
град Пловдив, Христо Смирненски
маг. 'Лекси'
Обява: 1a176518273789688

130 120 €
254 492.60 лв.
История на цената
(1 859 €, 3 635.89 лв./m2)

Цената е с включено ДДС
ЗАПАЗИ ОБЯВАТА

Местоположение: град Пловдив, Христо Смирненски, маг. 'Лекси'

Виж още имоти от Пловдив или още Едностайни Апартаменти в Пловдив
Допълнителни данни за имотите в района и сравнение с други райони: Търсене в АРХИВ 2013 - 2025 г.











Добави/редактирай
вид имот и район
*Средните цени са определени чрез медиана стойност.
Още обяви в imot.bg
Въпроси и предложения към imot.bg
КОНТАКТИ | SMS КОДОВЕ | ПОМОЩ | ОБЩИ УСЛОВИЯ | РЕКЛАМА | ЗАЩИТА НА ЛИЧНИТЕ ДАННИ | КАРТА НА САЙТА |
Резон Медия | Имоти | Автомобили | Работа | Новини | Обяви | Преводи и легализация 2002-2025 ® Copyright imot.bg
© imot.bg ползва и препоръчва хостинг услугите на Bulinfo.net
Следвайте ни в: