Представяме за продажба студио с веранда, в новострояща се жилищна сграда в Царево.
Планиран Акт 16 - май 2025 г.
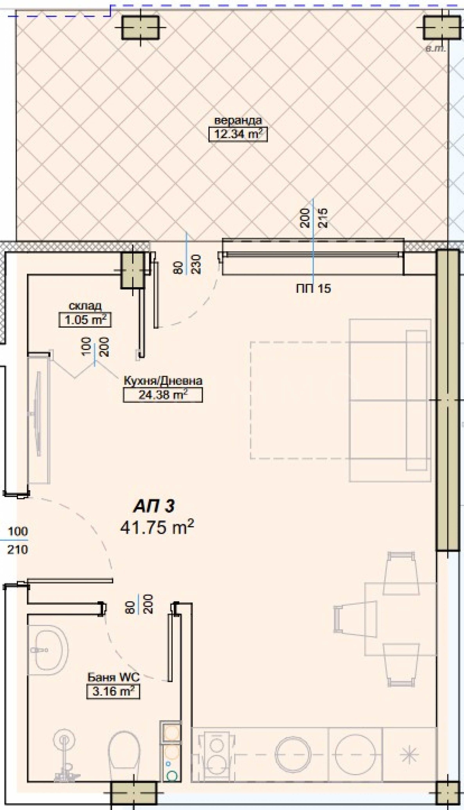
Имотът е с обща площ от 46,50 кв.м, разположен на 1-ви етаж, в 4-етажна сграда с асансьор и лимитиран брой жилища - 14 имота и 23 паркоместа.
Решена в средиземноморски стил, бутиковата сграда ще бъде изпълнена с висок клас материали:
фасадна топлоизолация и мазилки - Baumit;
фасадни HPL панели Fundermax;
тухли - Wienerberger;
алуминиева дограма.
Жилищата са от тип едностайни, двустайни и тристайни апартаменти. Имотите се издават в степен на завършеност БДС: изпълнена мазилка по стени и замазка по подове, напълно завършена Ел. и ВиК инсталация, монтирана дограма.
Локация
Удобна локация между централната част на курорта - Новия град и кв. 'Василико' - Стария град, с изглед към целия залив между двата квартала, с гледки към морето, пристанището и Храм 'Успение Богородично'. Районът е известен с името 'Белия бряг'. На пешеходно разстояние от плажът с известния Django Surf & Bar и плаж Нестинарка.
Оглед на имота
Можем да организираме оглед на имота в удобно за Вас време. За целта, свържете се с отговорния за офертата брокер и му кажете кога бихте искали да направите оглед.
Резервация на имота
Имотът може да бъде резервиран и свален от продажба със заплащане на депозит, след което се прекратява провеждането на огледи с други купувачи и започва подготовка на документите за сключване на предварителен и окончателен договор. Свържете се с отговорния брокер за този имот за подробна информация относно процедурата на покупка и начините за плащане.
Допълнителни услуги и следпродажбено обслужване
Ние сме уважавана компания и ще бъдем с Вас не само по време на покупката, но и след това, осигурявайки Ви допълнителни услуги по Ваше изискване с цел пълноценно и безпроблемно ползване на новозакупения имот. Услугите, които можем да предложим, включват получаване на одобрение за ипотечен ...
За повече информация свържете се с нас и цитирайте референтния номер на имота. Моля, кажете, че сте видeли обявата в този сайт.
Референтен номер: LXH-119439
Тел: 0888 360 754, 0554 57 087
Отговорен брокер:Екатерина Георгиева
Виж всички обяви в luximmoburgas.bazar.bg или тук
        
       
         
         
         
         
         
         
         
         
         
         
         
         
             
             
             
             
             
             
             
             
             
             
             
            






