LUXIMMO FINEST ESTATES: www.luximmo.bg
В процес на строителство. Очакван Акт 16 - 04.2028 г.
Представяме за продажба студио в нова жилищна сграда с басейн и удобства, разположена в сърцето на Стария град на Царево, в кв. 'Василико'. Във високата част на квартала, в непосредствена близост до плаж Нестинарка, централната градска част, заведения, паркове, хранителни и търговски вериги.
Покупка без комисиона.
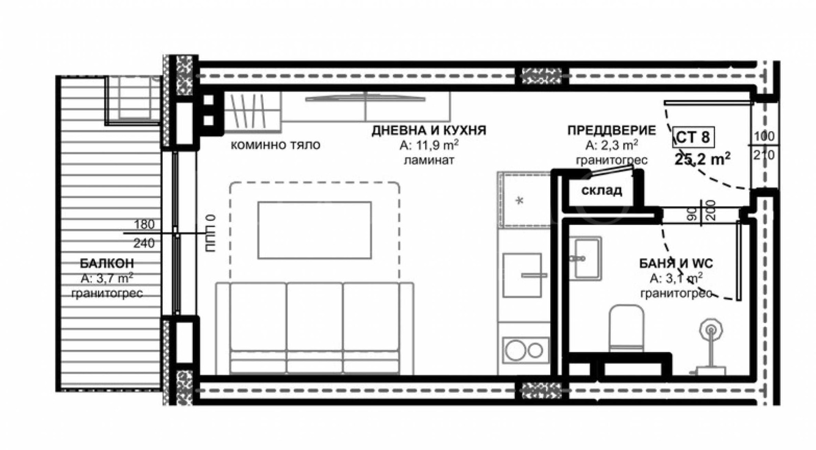
Имотът е с площ от 29,67 кв.м, ситуиран на 2-ри етаж и се състои от: антре, дневна с кухня, склад, баня с тоалет и тераса.
Жилището се издава в степен на завършеност по БДС, висок стандарт на качество на използваните материали.
За сградата
Сградата е с елегантен дизайн, проектирана на пет надземни етажа и един полусутерен, на които са разположени 71 апартамента от тип студиа, двустайни, тристайни и четиристайни апартаменти, 29 паркоместа и складове.
Собствениците на първи етаж ще разполагат със собствен двор и паркомясто в близост, а собствениците предпочели последния 5 и етаж, ще се наслаждават на морска и планинска гледка от своите панорамни тераси.
Има възможност за покупка на паркомясто допълнително.
Имотите съчетават светли пространства, проектирани с внимание към детайла и с мисъл за онези, които ценят качеството и модерния начин на живот. Иновативна концепция, съчетаваща модерна архитектура и нови технологии.
Модерно и качествено строителство:
енергиен клас А - висока енергийна ефективност, осигуряваща ниско енергопотребление и оптимални разходи за отопление и охлаждане;
премиум фасада - керамична фасада с модерен дизайн и отлична устойчивост във времето;
френски прозорци - максимално остъкляване за повече светлина, простор и несравними гледки;
дограма от най-висок клас - отлична топло- и шумоизолация, модерна визия и дълъг ...
Цената на имота е 34 120 евро / 66 732.92 лв. без ДДС или 40 944 евро / 80 079.50 лв. с ДДС. Данъчен кредит може да се ползва при определени условия.
За повече информация свържете се с нас и цитирайте референтния номер на имота. Моля, кажете, че сте видeли обявата в този сайт.
Референтен номер: LXH-139511
Тел: 0888 360 754, 0554 57 087
Отговорен брокер:Екатерина Георгиева
Без комисиона от купувача







