Translations in other languages:
All real estate ads published on imot.bg have been translated into English and published on the partner site
Получихте нова обява по филтър





Промяна на цена на наблюдавана обява


стара цена
нова цена
imot.bg – обяви за продажби и наеми на имоти
Сайт за имоти №1
Translations in other languages:
All real estate ads published on imot.bg have been translated into English and published on the partner site
ДОБАВИ ОБЯВА Редакция на обява
Начало Добави обява Търсене Агенции Новини Кредити Вход / Регистрация
Дава под Наем СТОМАТОЛОГИЧЕН КАБИНЕТ
град София, Овча купел
2 010 €
3 931.22 лв.

(15 €, 29.34 лв./m2)
Цената е с включено ДДС
История на цената
Коригирана в 11:52 на 24 април, 2026 год.
Обявата е посетена 45 пъти.
Площ:
134 m2
Етаж:
Партер от 16

Описание на имота:


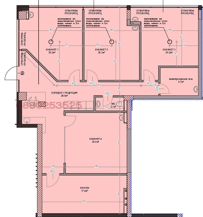
Инвеститор предлага с опция за покупка или наемане медико-дентален център в ж.к. Овча купел, бул. 'Президент Линкълн' 65. Площите включват рецепция, 3 дентални кабинета, още един кабинет, помещения за рентгенова апаратура и манипулационна, санитарен възел. Височината на помещенията е 4,80м. Строителството ще бъде завършено през 2027 г., което дава полезна възможност за преработка на проекта, при необходимост. Към помещението може да бъде добавено паркомясто.
Особености
Необзаведен
Окабеляване
Саниран
За контакт:
0890253525
/Частно лице/
ИЗПРАТИ ЗАПИТВАНЕ
ИЗПРАТИ ЗАПИТВАНЕТО

Дава под Наем СТОМАТОЛОГИЧЕН КАБИНЕТ
град София, Овча купел
Обява: 2u177701945095541

2 010 €
3 931.22 лв.
История на цената
(15 €, 29.34 лв./m2)

Цената е с включено ДДС
0890253525
/Частно лице/ Изпрати E-mail до продавача
ЗАПАЗИ ОБЯВАТА

Местоположение: град София, Овча купел

Виж още наеми от София или още Бизнес имоти в София
Допълнителни данни за имотите в района и сравнение с други райони

Покажи

Период

и 4 месеца

* Средните цени са определени чрез медианна стойност
Още обяви в imot.bg
Обяви за имоти Наеми Наеми в град София Наеми в Овча купел Наеми на Бизнес имоти
Въпроси и предложения към imot.bg
КОНТАКТИ | SMS КОДОВЕ | ПОМОЩ | ОБЩИ УСЛОВИЯ | РЕКЛАМА | ЗАЩИТА НА ЛИЧНИТЕ ДАННИ | КАРТА НА САЙТА |
Резон Медия | Автомобили | Работа | Новини | Обяви 2002-2026 ® Copyright imot.bg
© imot.bg ползва и препоръчва хостинг услугите на Bulinfo.net
Следвайте ни в: