' Велдикс ' - недвижими имоти отдава самостоятелна сграда с РЗП от 1000 кв.м. ( ЗП 144 кв.м.), УПИ 388 кв.м.. Мястото е комуникативно в близост до: Медицински университет, ВМА, други здравни заведения, търговски обекти, метростанция. Сградата се състои от: сутерен, партер, два етажа и тризонет.
Сутерен: складови помещения, машинно помещение, абонатна станция;
Партер: три самостоятелни гаража с достъп откъм улицата, входно антре, склад, стая, кухненски бокс, санитарен възел;
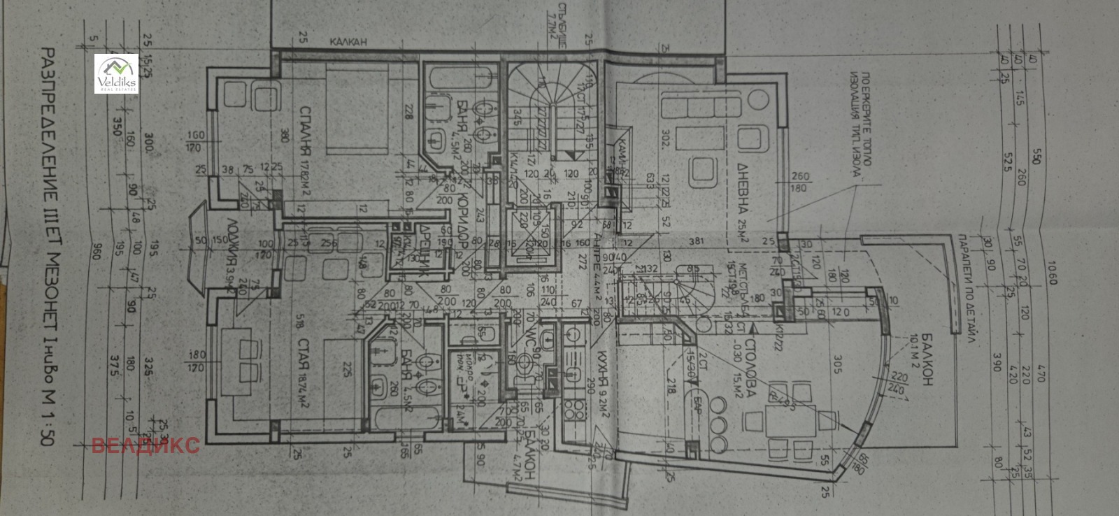
Два типови етажа ( първи и втори етаж) всеки един от тях състоящ се от: дневна/столова/кухня, две стаи, дрешник, две бани и отделно тоалетна и три балкона;
Тризонет: Ниво 1 - дневна/столова/кухня, две стаи, две бани, тоалетна, три балкона/ Ниво 2 - три стаи, дрешник, две санитарни помещения, будуар, три санитарни възела/ Ниво 3 - две студиа всяко с кухненски бокс и санитарен възел. Подходящо за център за обучения, офис - представителство и др. Отопление/ охлаждане- ТЕЦ/ климатици.
За допълнителна информация и огледи: 0877066331 - Веселина Шарланджиева







